Ailo 150 1A
140 m² / 150 m²
Kuvaus
Lapin tunturimaisemista inspiraationsa saanut ja ilmeikkään poron mukaan nimetty Ailo -talomalli hurmaa upealla lasiseinällään. Upea Maisema Plus panoraamaseinä tuo luonnon sisälle ja avaa näkymät ympäröivään luontoon. Ulko- ja sisätilat muodostavat yhden kokonaisuuden ja korkea olohuone kylpee luonnonvalossa.
Makuuhuoneet sijaitsevat yksityisemmissä tiloissa talon takaosassa ja parvella. Sauna ja peseytymistilat on sijoitettu omaan siipeen, jossa voi nauttia tunnelmallisesta, kiireettömästä saunahetkestä. Tässä kodissa todella voi nauttia elämästä ja ympäröivästä luonnosta!
Yleiskatsaus
- Nimi
- Ailo 150 1A
- Pinta-ala, brutto
- 150 m2
- Pinta-ala, netto
- 140 m2
- Kerrokset
- 2
- Makuuhuoneet
- 3
- Kylpyhuoneet
- 1
- WC:t
- 2
- Honka-tunniste
- 36417
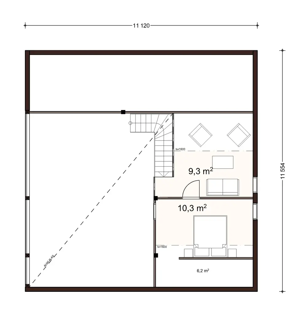
Pohjakuvat
Kuvagalleria
Starter block heading
Tips for first-time builders
Lorem ipsum dolor sit amet, consectetur adipiscing elit, sed do eiusmod tempor incididunt ut labore et dolore magna.
Tips for first-time builders
Lorem ipsum dolor sit amet, consectetur adipiscing elit, sed do eiusmod tempor incididunt ut labore et dolore magna.
Tips for first-time builders
Lorem ipsum dolor sit amet, consectetur adipiscing elit, sed do eiusmod tempor incididunt ut labore et dolore magna.