Skip to content
Suomi – Suomi
Mallisto / Hirsimökit ja -huvilat / Ailo 184 2A

Ailo 184 2A

170 m² / 184 m²

Variantit
Ailo 184 2A
Ailo 184 2A Ailo 184 2A
Kuvaus

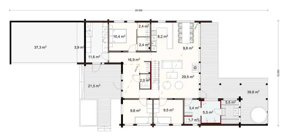
Lapin tunturimaisemista inspiraationsa saanut ja ilmeikkään poron mukaan nimetty Ailo -talomalli hurmaa upealla lasiseinällään. Upea Maisema Plus panoraamaseinä tuo luonnon sisälle ja avaa näkymät ympäröivään luontoon. Ulko- ja sisätilat muodostavat yhden kokonaisuuden ja korkea olohuone kylpee luonnonvalossa.

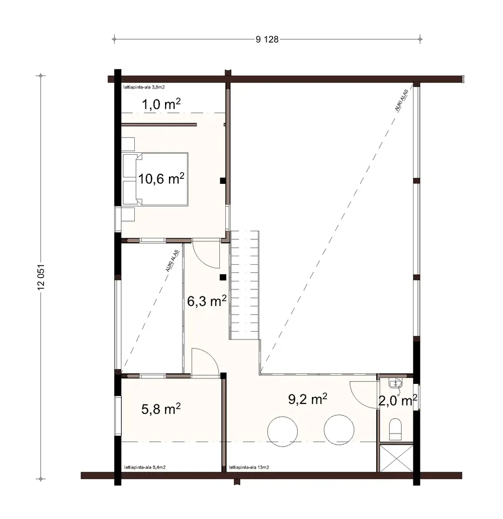
Makuuhuoneet sijaitsevat yksityisemmissä tiloissa talon takaosassa ja parvella. Sauna ja peseytymistilat on sijoitettu omaan siipeen, jossa voi nauttia tunnelmallisesta, kiireettömästä saunahetkestä. Tässä kodissa todella voi nauttia elämästä ja ympäröivästä luonnosta!

Yleiskatsaus
Nimi
Ailo 184 2A
Pinta-ala, brutto
184 m2
Pinta-ala, netto
170 m2
Kerrokset
2
Makuuhuoneet
4
Kylpyhuoneet
1
WC:t
3
Honka-tunniste
34001

Pohjakuvat

Variantit
Ailo 184 2A floor plan
Ailo 184 2A floor plan
Ailo 184 2A floor plan

Starter block heading

Tips for first-time builders

Lorem ipsum dolor sit amet, consectetur adipiscing elit, sed do eiusmod tempor incididunt ut labore et dolore magna.

Read more

Tips for first-time builders

Lorem ipsum dolor sit amet, consectetur adipiscing elit, sed do eiusmod tempor incididunt ut labore et dolore magna.

Read more

Tips for first-time builders

Lorem ipsum dolor sit amet, consectetur adipiscing elit, sed do eiusmod tempor incididunt ut labore et dolore magna.

Read more
pineo-alue-2025-004-1536x1097

Order a free catalog

Explore our collections by browsing the catalog and pick up inspiring ideas for building your own log home or cabin.