Skip to content
Suomi – Suomi
Mallisto Hirsimökit ja -huvilat Ailo 192 1A

Ailo 192 1A

Variantit
Ailo 192 1A
Ailo 192 1A
Kuvaus

Lapin tunturimaisemista inspiraationsa saanut ja ilmeikkään poron mukaan nimetty Honka Ailo -talomalli hurmaa upealla lasiseinällään. Upea Maisema Plus panoraamaseinä tuo luonnon sisälle ja avaa näkymät ympäröivään luontoon. Ulko- ja sisätilat muodostavat yhden kokonaisuuden ja korkea olohuone kylpee luonnonvalossa.

Makuuhuoneet sijaitsevat yksityisemmissä tiloissa talon takaosassa ja parvella. Sauna ja peseytymistilat on sijoitettu omaan siipeen, jossa voi nauttia tunnelmallisesta, kiireettömästä saunahetkestä. Tässä kodissa todella voi nauttia elämästä ja ympäröivästä luonnosta!

Yleiskatsaus
Nimi
Ailo 192 1A
Pinta-ala, brutto
192.5 m²
Pinta-ala, netto
178.5 m²
Honka-tunniste
34029

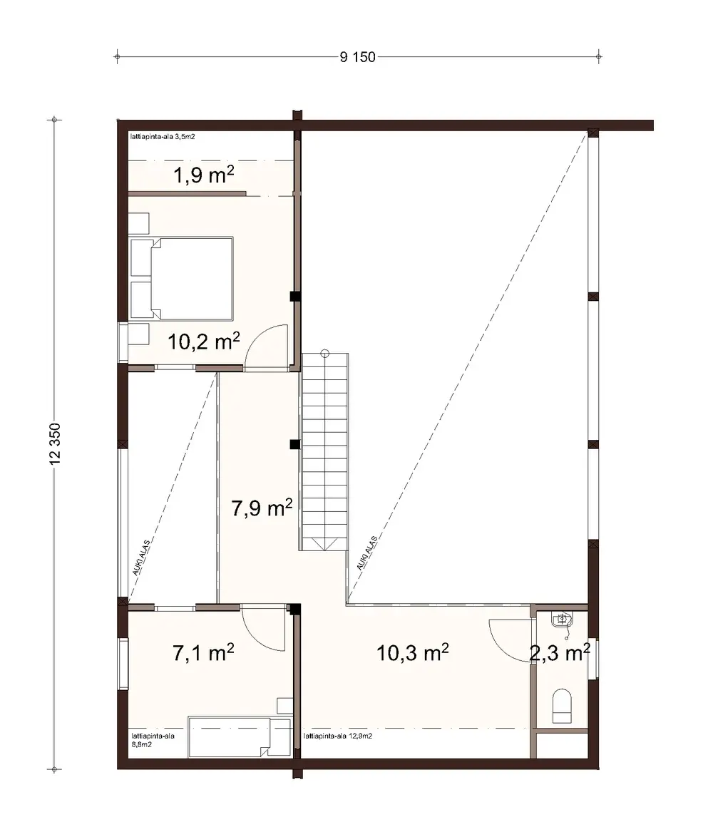
Pohjakuvat

Variantit
Ailo 192 1A floor plan
Ailo 192 1A floor plan
Ailo 192 1A facade

Starter block heading

Tips for first-time builders

Lorem ipsum dolor sit amet, consectetur adipiscing elit, sed do eiusmod tempor incididunt ut labore et dolore magna.

Read more

Tips for first-time builders

Lorem ipsum dolor sit amet, consectetur adipiscing elit, sed do eiusmod tempor incididunt ut labore et dolore magna.

Read more

Tips for first-time builders

Lorem ipsum dolor sit amet, consectetur adipiscing elit, sed do eiusmod tempor incididunt ut labore et dolore magna.

Read more
pineo-alue-2025-004-1536x1097

Order a free catalog

Explore our collections by browsing the catalog and pick up inspiring ideas for building your own log home or cabin.