Skip to content
Suomi – Suomi
Mallisto Hirsimökit ja -huvilat Halla 132 1A

Halla 132 1A

Variantit
Halla 132 1A
Halla 132 1A
Kuvaus

Honka Hallan pesämäinen, suojaava ulkonäkö viehättää uudenlaisella ilmeellään. Ulkoarkkitehtuuri noudattaa kansainvälisesti suosittua kuorimaista rakennetta, jossa katetut terassit suojaavat rakennusta. Loivan katon alle jää suojaisia oleskelutiloja. Hallan olohuoneesta avautuu upea kokemus lähelle tulevasta luonnosta. Suuremmissa kokoversioissa myös saunasta pääsee nauttimaan näkymistä päämaisemaan. Leveänä ja suhteellisen matalana Halla istuu kauniisti myös mäen päälle.

Suunnittelimme Hallan sisarmalliksi Honka Frame -ideamalliston suuren suosion saavuttaneelle Honka Lauha -huvilalle.

Yleiskatsaus
Nimi
Halla 132 1A
Pinta-ala, brutto
132 m²
Pinta-ala, netto
122 m²
Honka-tunniste
50109

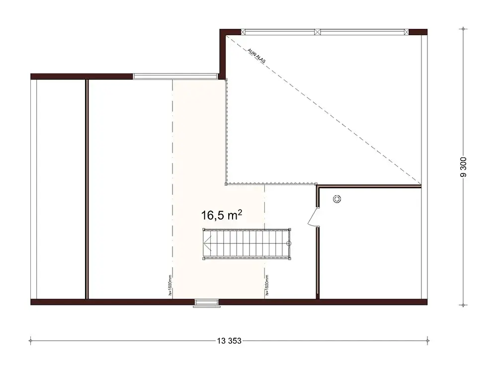
Pohjakuvat

Variantit
Halla 132 1A floor plan
Halla 132 1A floor plan
Halla 132 1A facade

Starter block heading

Tips for first-time builders

Lorem ipsum dolor sit amet, consectetur adipiscing elit, sed do eiusmod tempor incididunt ut labore et dolore magna.

Read more

Tips for first-time builders

Lorem ipsum dolor sit amet, consectetur adipiscing elit, sed do eiusmod tempor incididunt ut labore et dolore magna.

Read more

Tips for first-time builders

Lorem ipsum dolor sit amet, consectetur adipiscing elit, sed do eiusmod tempor incididunt ut labore et dolore magna.

Read more
pineo-alue-2025-004-1536x1097

Order a free catalog

Explore our collections by browsing the catalog and pick up inspiring ideas for building your own log home or cabin.