Skip to content
Suomi – Suomi
Mallisto Hirsimökit ja -huvilat Honka Lux 145 1A

Honka Lux 145 1A

Variantit
Honka Lux 145 1A
Honka Lux 145 1A
Kuvaus

Hirsihuvila Honka Lux on saanut nimensä valosta – talon modernin skandinaavinen arkkitehtuuri on tehty valon ehdoilla. Lattiasta kattoon ulottuvat ikkunat päästävät luonnonvalon sisään aamusta iltaan. Lux viittaa myös laatuun: kaikki on alusta loppuun suunniteltu laatu edellä.

Mallistoon kuuluu huviloita eri pohjaratkaisulla sekä niihin sopiva saunarakennus, joihin voit valita aumakaton tai hyvin loivan hattukaton. Kolme erilaista pitkälle vietyä sisustustyyliä helpottavat sävyjen, materiaalien ja kalusteiden valintaa. Jokaisesta Luxista tulee uniikki aivan kuten sen jokainen hirsi on – ja aivan kuten sen jokainen asukas.

Ulkokuvat ovat visualisointeja eri malliversioista, Sisäkuvat Honka Lux 154 -huvilamallista.

Yleiskatsaus
Nimi
Honka Lux 145 1A
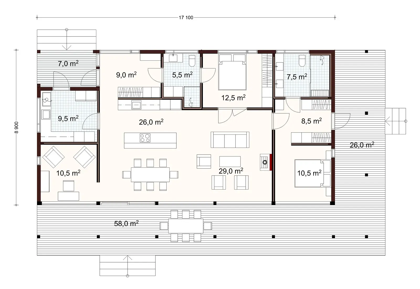
Pinta-ala, brutto
145 m²
Pinta-ala, netto
134.5 m²
Honka-tunniste
50024

Pohjakuvat

Variantit
Honka Lux 145 1A floor plan
Honka Lux 145 1A facade

Starter block heading

Tips for first-time builders

Lorem ipsum dolor sit amet, consectetur adipiscing elit, sed do eiusmod tempor incididunt ut labore et dolore magna.

Read more

Tips for first-time builders

Lorem ipsum dolor sit amet, consectetur adipiscing elit, sed do eiusmod tempor incididunt ut labore et dolore magna.

Read more

Tips for first-time builders

Lorem ipsum dolor sit amet, consectetur adipiscing elit, sed do eiusmod tempor incididunt ut labore et dolore magna.

Read more
pineo-alue-2025-004-1536x1097

Order a free catalog

Explore our collections by browsing the catalog and pick up inspiring ideas for building your own log home or cabin.