Skip to content
Suomi – Suomi
Mallisto Hirsimökit ja -huvilat Honka Lux 82 1A

Honka Lux 82 1A

Variantit
Honka Lux 82 1A
Honka Lux 82 1A
Kuvaus

Upea, näyttävä Honka Lux -mallisto on vakuuttanut asiakkaamme niin kotimaassa kuin kansainvälisestikin. Valon ehdolla suunniteltu mallisto tarjoaa isojen ikkunapintojen lisäksi hirsiseinien ainutlaatuista lämpöä ja tunnelmaa. Lux on vahva ja herkkä yhtä aikaa – kaikkina vuodenaikoina ja kaikissa ympäristöissä toimiva hirsihuvila, jossa aamujen ensisäteet ja iltojen auringonlaskut ovat läsnä. Lux on hirsihuvila, jonka arkkitehtuuri on yksinkertaisen vaikuttavaa, ja joka kestää aikaa ja katseita.

Sisäkuvat ovat visualisointeja Lux 114 1A -mallista ja Ulkokuvat ovat visualisointeja Lux 69 1A -mallista.

Yleiskatsaus
Nimi
Honka Lux 82 1A
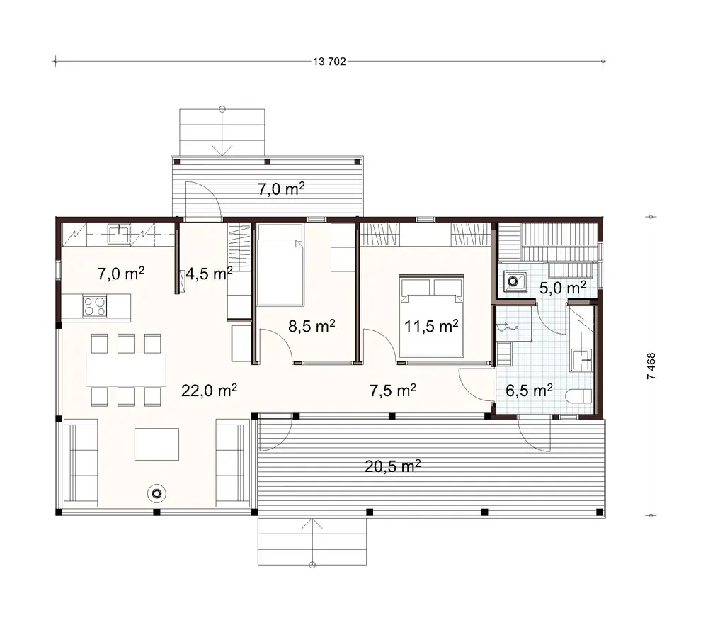
Pinta-ala, brutto
81.5 m²
Pinta-ala, netto
75.5 m²
Honka-tunniste
50378

Pohjakuvat

Variantit
Honka Lux 82 1A floor plan
Honka Lux 82 1A facade

Starter block heading

Tips for first-time builders

Lorem ipsum dolor sit amet, consectetur adipiscing elit, sed do eiusmod tempor incididunt ut labore et dolore magna.

Read more

Tips for first-time builders

Lorem ipsum dolor sit amet, consectetur adipiscing elit, sed do eiusmod tempor incididunt ut labore et dolore magna.

Read more

Tips for first-time builders

Lorem ipsum dolor sit amet, consectetur adipiscing elit, sed do eiusmod tempor incididunt ut labore et dolore magna.

Read more
pineo-alue-2025-004-1536x1097

Order a free catalog

Explore our collections by browsing the catalog and pick up inspiring ideas for building your own log home or cabin.