Skip to content
Suomi – Suomi
Mallisto / Hirsimökit ja -huvilat / Hygge 80 2A

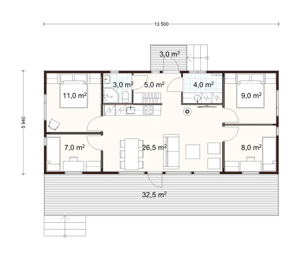
Hygge 80 2A

75 m² / 80 m²

Variantit
Hygge 65 1A Hygge 80 1A Hygge 80 2A
Hygge 80 2A
Hygge 80 2A Hygge 80 2A
Kuvaus

Hurmaavan tunnelmallinen Hygge on vapaa-ajan huvila, joka sulautuu kauniisti ympäröivään luontoon.

Suuret ikkunat kutsuvat luonnonvalon sisään tähän moderniin tilaan, ja maisemia voi ihailla aina aamunkajosta illan hämärään. Hygge tarjoaa kaiken, mitä vapaa-ajan asumiselta voi toivoa: keittiö-olohuonetila tulisijan kera, kaksi erillistä makuuhuonetta, sauna-, pesu- ja pukeutumistilat sekä wc kaikki yhdessä. Pariovet jatkavat oleskelutilaa etuosan terassille. Tässä huvilassa voi nauttia laadukkaasta vapaa-ajasta ympäri vuoden, muuttuvia vuodenaikoja ja maisemia katsellen.

Yleiskatsaus
Nimi
Hygge 80 2A
Pinta-ala, brutto
80 m2
Pinta-ala, netto
75 m2
Kerrokset
1
Makuuhuoneet
4
Kylpyhuoneet
1
WC:t
1
Honka-tunniste
50368

Pohjakuvat

Variantit
Hygge 65 1A Hygge 80 1A Hygge 80 2A
Hygge 80 2A floor plan

Starter block heading

Tips for first-time builders

Lorem ipsum dolor sit amet, consectetur adipiscing elit, sed do eiusmod tempor incididunt ut labore et dolore magna.

Read more

Tips for first-time builders

Lorem ipsum dolor sit amet, consectetur adipiscing elit, sed do eiusmod tempor incididunt ut labore et dolore magna.

Read more

Tips for first-time builders

Lorem ipsum dolor sit amet, consectetur adipiscing elit, sed do eiusmod tempor incididunt ut labore et dolore magna.

Read more
pineo-alue-2025-004-1536x1097

Order a free catalog

Explore our collections by browsing the catalog and pick up inspiring ideas for building your own log home or cabin.