Skip to content
Suomi – Suomi
Mallisto / Hirsimökit ja -huvilat / Kommodori 100 1A

Kommodori 100 1A

90 m² / 100 m²

Variantit
Kommodori 100 1A
Kommodori 100 1A Kommodori 100 1A
Kuvaus

Tyyliä vapaa-aikaan

Skandinaavisen linjakas Kommodori-mallisto sisältää upeita merellisiä lomakoteja. Huikea tunnelma valtaa lomailijan jo sisään astuttaessa. Isot oleskelutilojen kolmeen ilmansuuntaan avautuvat ikkunat takaavat lähes esteettömän panoraamanäkymän ympäröivään maisemaan. Täällä nautit lomailusta kaikin aistein.

Yleiskatsaus
Nimi
Kommodori 100 1A
Pinta-ala, brutto
100 m2
Pinta-ala, netto
90 m2
Kerrokset
1
Makuuhuoneet
2
Kylpyhuoneet
1
WC:t
1
Honka-tunniste
24219

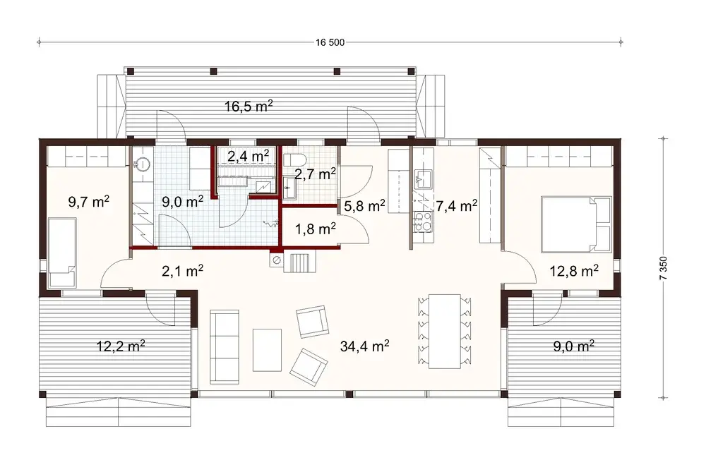
Pohjakuvat

Variantit
Kommodori 100 1A floor plan

Starter block heading

Tips for first-time builders

Lorem ipsum dolor sit amet, consectetur adipiscing elit, sed do eiusmod tempor incididunt ut labore et dolore magna.

Read more

Tips for first-time builders

Lorem ipsum dolor sit amet, consectetur adipiscing elit, sed do eiusmod tempor incididunt ut labore et dolore magna.

Read more

Tips for first-time builders

Lorem ipsum dolor sit amet, consectetur adipiscing elit, sed do eiusmod tempor incididunt ut labore et dolore magna.

Read more
pineo-alue-2025-004-1536x1097

Order a free catalog

Explore our collections by browsing the catalog and pick up inspiring ideas for building your own log home or cabin.