Skip to content
Suomi – Suomi
Mallisto / Hirsimökit ja -huvilat / Kommodori 80 4A

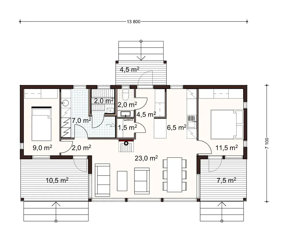
Kommodori 80 4A

71.5 m² / 80 m²

Variantit
Kommodori 80 4A
Kommodori 80 4A Kommodori 80 4A
Kuvaus

Tyyliä vapaa-aikaan

Skandinaavisen linjakas Kommodori-mallisto sisältää upeita merellisiä lomakoteja. Huikea tunnelma valtaa lomailijan jo sisään astuttaessa. Isot oleskelutilojen kolmeen ilmansuuntaan avautuvat ikkunat takaavat lähes esteettömän panoraamanäkymän ympäröivään maisemaan. Täällä nautit lomailusta kaikin aistein.

Yleiskatsaus
Nimi
Kommodori 80 4A
Pinta-ala, brutto
80 m2
Pinta-ala, netto
71.5 m2
Kerrokset
1
Makuuhuoneet
2
Honka-tunniste
8698

Pohjakuvat

Variantit
Kommodori 80 4A floor plan

Starter block heading

Tips for first-time builders

Lorem ipsum dolor sit amet, consectetur adipiscing elit, sed do eiusmod tempor incididunt ut labore et dolore magna.

Read more

Tips for first-time builders

Lorem ipsum dolor sit amet, consectetur adipiscing elit, sed do eiusmod tempor incididunt ut labore et dolore magna.

Read more

Tips for first-time builders

Lorem ipsum dolor sit amet, consectetur adipiscing elit, sed do eiusmod tempor incididunt ut labore et dolore magna.

Read more
pineo-alue-2025-004-1536x1097

Order a free catalog

Explore our collections by browsing the catalog and pick up inspiring ideas for building your own log home or cabin.