Skip to content
Suomi – Suomi
Mallisto Hirsimökit ja -huvilat Korpikumpu 135 1A

Korpikumpu 135 1A

Korpikumpu 135 1A
Korpikumpu 135 1A
Kuvaus

Plenty of open space

Honka Korpikumpu is an elegant villa model with plenty of open space. The covered terrace surrounds three sides of the villa, providing even larger groups with space to gather and enjoy the outdoors in all weather. The windows are carefully located, keeping the kitchen connected to nature as well. It is easy to relax and enjoy the open living areas, and the high windows in the living room add light to the space. The entranceway has ample space for sports equipment. If you like, the sauna facilities can be turned into a bedroom.

Yleiskatsaus
Nimi
Korpikumpu 135 1A
Pinta-ala, brutto
133.5 m²
Pinta-ala, netto
122 m²
Honka-tunniste
11220

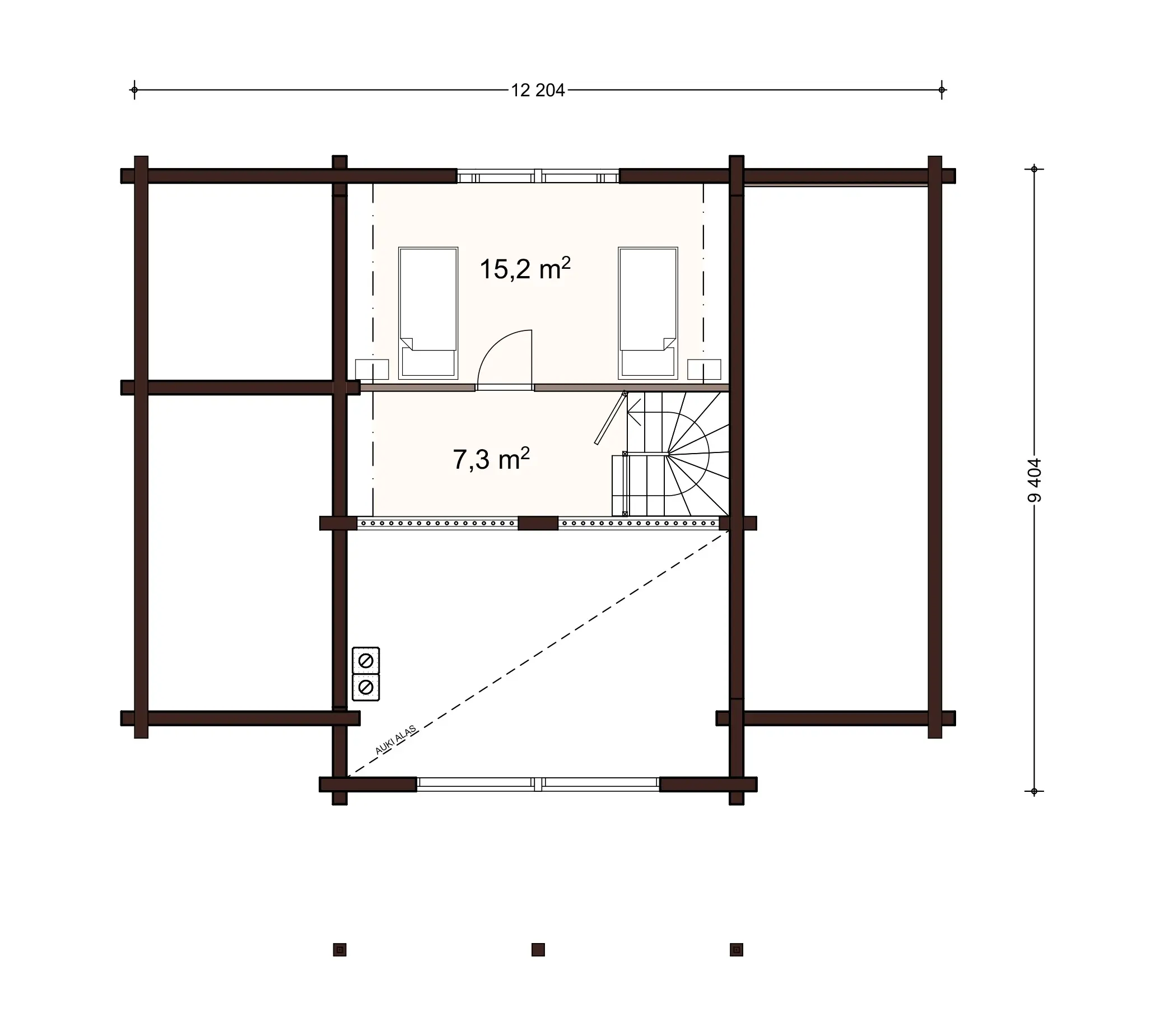
Pohjakuvat

Variantit
Korpikumpu 135 1A
Korpikumpu 135 1A floor plan
Korpikumpu 135 1A floor plan

Starter block heading

Tips for first-time builders

Lorem ipsum dolor sit amet, consectetur adipiscing elit, sed do eiusmod tempor incididunt ut labore et dolore magna.

Read more

Tips for first-time builders

Lorem ipsum dolor sit amet, consectetur adipiscing elit, sed do eiusmod tempor incididunt ut labore et dolore magna.

Read more

Tips for first-time builders

Lorem ipsum dolor sit amet, consectetur adipiscing elit, sed do eiusmod tempor incididunt ut labore et dolore magna.

Read more
pineo-alue-2025-004-1536x1097

Order a free catalog

Explore our collections by browsing the catalog and pick up inspiring ideas for building your own log home or cabin.