Lintukoto 40 1A
Kuvaus
Honka Lintukoto on designiltään hauska, moderni ja hyväntuulinen. Lintukodossa voit ihastella ilta-auringossa punertavaa mökkitaivasta etuseinien suurista ikkunoista.
Mallistoon kuuluu saunamökkejä, parvellisia mökkejä sekä nyt uutuutena ihastuttavia pieniä huviloita. Uusista huvilamalleista löytyy runsaasti petipaikkoja parvelta ja alakerrassa on yksi hyvän kokoinen päämakuuhuone. Suurimmassa 84-neliöisessä mallissa on myös kookas pukuhuone-vilvoittelutila, josta saa halutessaan käynnin suoraan ulos.
Hirsi ja avara tila tuovat hyvän rauhan olemiseen..
Yleiskatsaus
- Nimi
- Lintukoto 40 1A
- Pinta-ala, brutto
- 40 m²
- Pinta-ala, netto
- 36.5 m²
- Honka-tunniste
- 20473
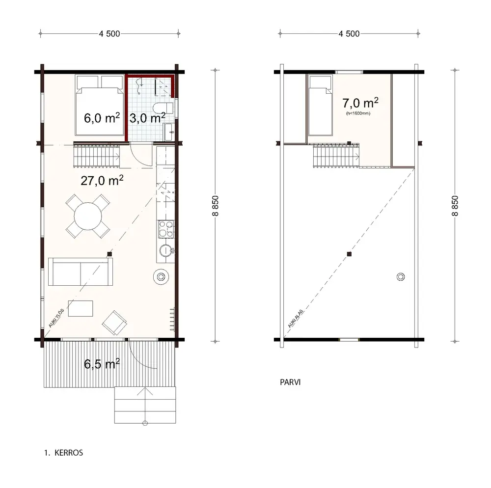
Pohjakuvat
Kuvagalleria
You might also be interested in
See allStarter block heading
Tips for first-time builders
Lorem ipsum dolor sit amet, consectetur adipiscing elit, sed do eiusmod tempor incididunt ut labore et dolore magna.
Tips for first-time builders
Lorem ipsum dolor sit amet, consectetur adipiscing elit, sed do eiusmod tempor incididunt ut labore et dolore magna.
Tips for first-time builders
Lorem ipsum dolor sit amet, consectetur adipiscing elit, sed do eiusmod tempor incididunt ut labore et dolore magna.