Skip to content
Suomi – Suomi
Mallisto / Hirsimökit ja -huvilat / Loimu 80 2A

Loimu 80 2A

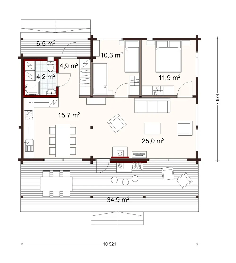
74 m² / 80 m²

Variantit
Loimu 80 2A
Loimu 80 2A Loimu 80 2A
Kuvaus

Kuvat ovat visualisointeja Loimu 80 2A -mallista.

Honka Loimu on luonnonystävän yksinkertainen ja tyylikäs huvila rentoon lomailuun. Sen sydän on koko talon pituinen kuisti, jonka keskelle voit sijoittaa tunnelmallisen ulkotakan.

Kustannustehokas pohja on viritetty huippuunsa toimivuuden näkökulmasta. Loimun suuri tupakeittiö olohuoneineen luo tilantuntua ja reilun kokoiset makuuhuoneet nostavat asumismukavuutta. Saunallinen suurempi mallivariaatio sopii tilaratkaisuiltaan myös omakotitaloksi.

Yleiskatsaus
Nimi
Loimu 80 2A
Pinta-ala, brutto
80 m2
Pinta-ala, netto
74 m2
Kerrokset
1
Makuuhuoneet
2
Kylpyhuoneet
1
WC:t
1
Honka-tunniste
50093

Pohjakuvat

Variantit
Loimu 80 2A floor plan

Starter block heading

Tips for first-time builders

Lorem ipsum dolor sit amet, consectetur adipiscing elit, sed do eiusmod tempor incididunt ut labore et dolore magna.

Read more

Tips for first-time builders

Lorem ipsum dolor sit amet, consectetur adipiscing elit, sed do eiusmod tempor incididunt ut labore et dolore magna.

Read more

Tips for first-time builders

Lorem ipsum dolor sit amet, consectetur adipiscing elit, sed do eiusmod tempor incididunt ut labore et dolore magna.

Read more
pineo-alue-2025-004-1536x1097

Order a free catalog

Explore our collections by browsing the catalog and pick up inspiring ideas for building your own log home or cabin.