Skip to content
Suomi – Suomi
Mallisto / Hirsimökit ja -huvilat / Loimu 93 1A

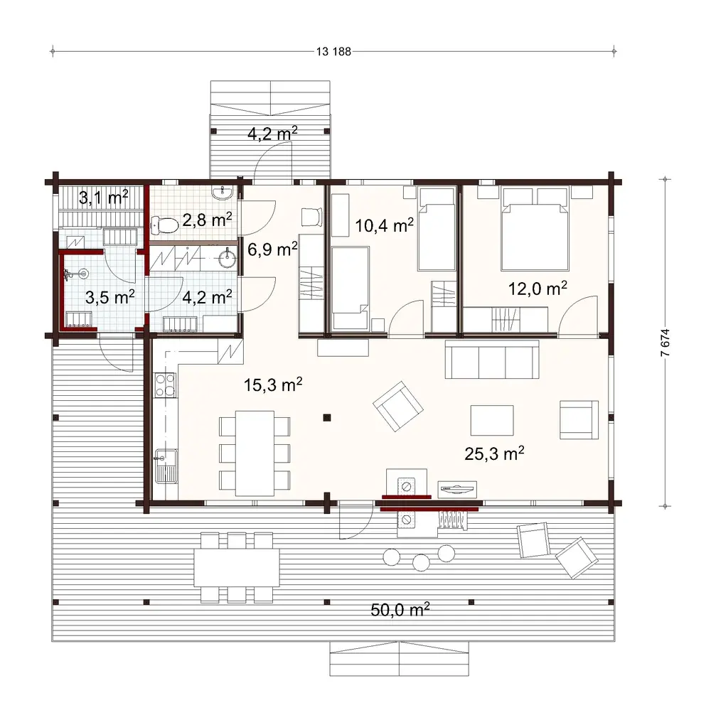
Loimu 93 1A

86.5 m² / 93 m²

Variantit
Loimu 93 1A
Loimu 93 1A Loimu 93 1A
Kuvaus

Kuvat ovat visualisointeja Loimu 80 2A -mallista.

Honka Loimu on luonnonystävän yksinkertainen ja tyylikäs huvila rentoon lomailuun. Sen sydän on koko talon pituinen kuisti, jonka keskelle voit sijoittaa tunnelmallisen ulkotakan.

Kustannustehokas pohja on viritetty huippuunsa toimivuuden näkökulmasta. Loimun suuri tupakeittiö olohuoneineen luo tilantuntua ja reilun kokoiset makuuhuoneet nostavat asumismukavuutta. Saunallinen suurempi mallivariaatio sopii tilaratkaisuiltaan myös omakotitaloksi.

Yleiskatsaus
Nimi
Loimu 93 1A
Pinta-ala, brutto
93 m2
Pinta-ala, netto
86.5 m2
Kerrokset
1
Makuuhuoneet
2
Kylpyhuoneet
1
WC:t
1
Honka-tunniste
50094

Pohjakuvat

Variantit
Loimu 93 1A floor plan

Starter block heading

Tips for first-time builders

Lorem ipsum dolor sit amet, consectetur adipiscing elit, sed do eiusmod tempor incididunt ut labore et dolore magna.

Read more

Tips for first-time builders

Lorem ipsum dolor sit amet, consectetur adipiscing elit, sed do eiusmod tempor incididunt ut labore et dolore magna.

Read more

Tips for first-time builders

Lorem ipsum dolor sit amet, consectetur adipiscing elit, sed do eiusmod tempor incididunt ut labore et dolore magna.

Read more
pineo-alue-2025-004-1536x1097

Order a free catalog

Explore our collections by browsing the catalog and pick up inspiring ideas for building your own log home or cabin.