Skip to content
Suomi – Suomi
Mallisto Hirsimökit ja -huvilat Louhi 128 2A

Louhi 128 2A

Variantit
Louhi 104 1A Louhi 128 1A Louhi 128 2A
Louhi 128 2A
Louhi 128 2A
Kuvaus

Arkkitehtuuriltaan persoonallinen Honka Louhi on muuntojoustava talomalli ympärivuotiseen vapaa-ajan asumiseen tai omakotitaloksi. Honka Louhi kätkee sisälleen salaisuuden - tilavan vinokattoisen tupakeittiön yllä on suuri, monikäyttöinen parvitila, jonne pääsee helposti suoria portaita pitkin. Taloa voidaan laajentaa kahdella eri tavalla: välitilallisella isolla makuuhuoneella ja erillisellä wc:llä tai välitilallisella saunaosastolla, jolloin perusosan pesuhuonetilat ovat muutettavissa isoksi päämakuuhuoneeksi.

Yleiskatsaus
Nimi
Louhi 128 2A
Pinta-ala, brutto
128 m²
Pinta-ala, netto
115.5 m²
Honka-tunniste
50176

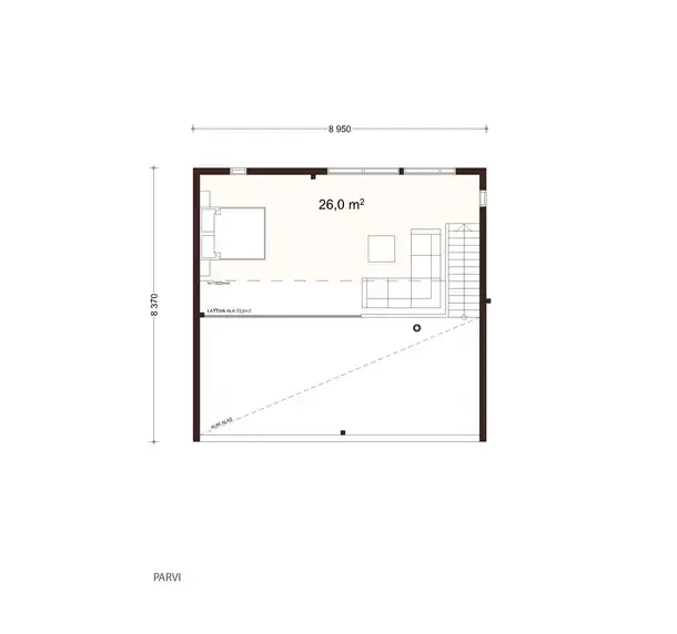
Pohjakuvat

Variantit
Louhi 104 1A Louhi 128 1A Louhi 128 2A
Louhi 128 2A floor plan
Louhi 128 2A floor plan
Louhi 128 2A facade

Starter block heading

Tips for first-time builders

Lorem ipsum dolor sit amet, consectetur adipiscing elit, sed do eiusmod tempor incididunt ut labore et dolore magna.

Read more

Tips for first-time builders

Lorem ipsum dolor sit amet, consectetur adipiscing elit, sed do eiusmod tempor incididunt ut labore et dolore magna.

Read more

Tips for first-time builders

Lorem ipsum dolor sit amet, consectetur adipiscing elit, sed do eiusmod tempor incididunt ut labore et dolore magna.

Read more
pineo-alue-2025-004-1536x1097

Order a free catalog

Explore our collections by browsing the catalog and pick up inspiring ideas for building your own log home or cabin.