Skip to content
Suomi – Suomi
Mallisto Hirsimökit ja -huvilat Niitty 308 1A

Niitty 308 1A

Variantit
Niitty 308 1A Niitty 92 1A
Niitty 308 1A
Niitty 308 1A
Kuvaus

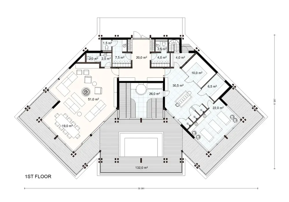
Honka Niitty wows with its dramatic architecture. In Finnish, ‘niitty’ means ‘meadow’, and the name refers to the blossom-like layout of the building. The majestic design opens towards three directions and the surrounding landscape, making nature very much present.

The design is suitable for different types of landscapes and terrains, from flat to sloping, depending on the type of foundation. The floor plan consists of two wings—one with the living areas and the other with dressing room, washroom and cool-down area—and a sauna between them. In front of the sauna, you have a large outdoor pool. The ground floor houses maintenance and storage facilities.

Yleiskatsaus
Nimi
Niitty 308 1A
Pinta-ala, brutto
308 m²
Pinta-ala, netto
271.5 m²
Honka-tunniste
50406

Pohjakuvat

Variantit
Niitty 308 1A Niitty 92 1A
Niitty 308 1A floor plan
Niitty 308 1A floor plan

Starter block heading

Tips for first-time builders

Lorem ipsum dolor sit amet, consectetur adipiscing elit, sed do eiusmod tempor incididunt ut labore et dolore magna.

Read more

Tips for first-time builders

Lorem ipsum dolor sit amet, consectetur adipiscing elit, sed do eiusmod tempor incididunt ut labore et dolore magna.

Read more

Tips for first-time builders

Lorem ipsum dolor sit amet, consectetur adipiscing elit, sed do eiusmod tempor incididunt ut labore et dolore magna.

Read more
pineo-alue-2025-004-1536x1097

Order a free catalog

Explore our collections by browsing the catalog and pick up inspiring ideas for building your own log home or cabin.