Skip to content
Suomi – Suomi

Pilvi 111 1A

Pilvi 111 1A
Pilvi 111 1A
Kuvaus

Honka Pilvi on kodikas hirsiunelma, jonka ikoninen arkkitehtuuri viehättää vuosikymmenestä toiseen. Hirsitalon syleilyssä on helppo rauhoittua, sen korkea ikkunaratkaisu avaa upeat näkymät luontoon. Hirsikodin klassinen kauneus näkyy myös talomallin käytännöllisyydessä.

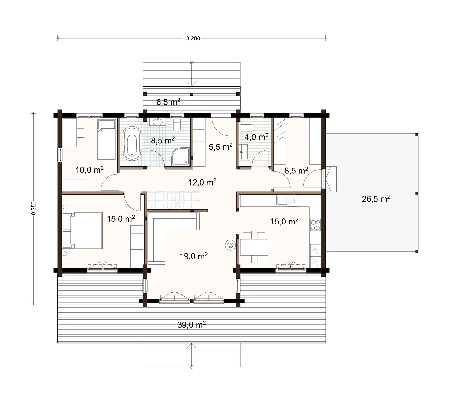
Yksikerroksisessa rakennuksessa on tehokas pohjaratkaisu ja tilava kodinhoitohuone, jonka kautta voit tulla sisään kuraisissakin vaatteissa. Puolitoistakerroksisessa Pilvi-talomallissa on näiden lisäksi toinen oleskelutila ja kaksi makuuhuonetta aputiloineen.

Kuvat ovat visualisointeja Pilvi 112 2A -mallista.

Yleiskatsaus
Nimi
Pilvi 111 1A
Pinta-ala, brutto
111 m²
Pinta-ala, netto
101 m²
Honka-tunniste
50004

Pohjakuvat

Variantit
Pilvi 111 1A floor plan

Starter block heading

Tips for first-time builders

Lorem ipsum dolor sit amet, consectetur adipiscing elit, sed do eiusmod tempor incididunt ut labore et dolore magna.

Read more

Tips for first-time builders

Lorem ipsum dolor sit amet, consectetur adipiscing elit, sed do eiusmod tempor incididunt ut labore et dolore magna.

Read more

Tips for first-time builders

Lorem ipsum dolor sit amet, consectetur adipiscing elit, sed do eiusmod tempor incididunt ut labore et dolore magna.

Read more
pineo-alue-2025-004-1536x1097

Order a free catalog

Explore our collections by browsing the catalog and pick up inspiring ideas for building your own log home or cabin.