Skip to content
Suomi – Suomi
Mallisto / Hirsimökit ja -huvilat / Puhuri 50 1A

Puhuri 50 1A

46 m² / 50 m²

Variantit
Puhuri 50 1A Puhuri 60 1A
Puhuri 50 1A
Puhuri 50 1A Puhuri 50 1A
Kuvaus

Honka Puhuri on rannikkomaiseman kalamajoista innoituksensa saanut pieni, mutta tiloiltaan tehokas ja toimiva loma-asunto. Kapean runkonsa ansiosta se solahtaa hyvin erilaisiin maastoihin.

Pienestä koostaan huolimatta Puhurissa on kaksi makuuhuonetta ja kaikki tarvittavat toiminnot hyvin mitoitettuna. Olohuoneesta avautuu maisemat kolmeen ilmansuuntaan.

Yleiskatsaus
Nimi
Puhuri 50 1A
Pinta-ala, brutto
50 m2
Pinta-ala, netto
46 m2
Kerrokset
1
Makuuhuoneet
2
Kylpyhuoneet
1
WC:t
1
Honka-tunniste
50365

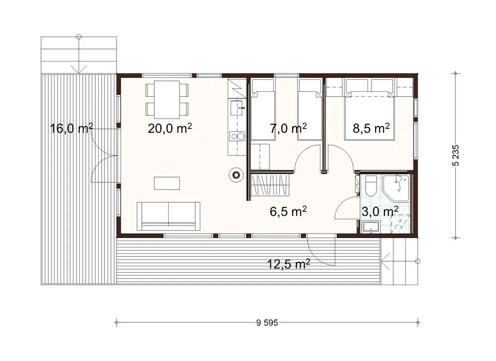
Pohjakuvat

Variantit
Puhuri 50 1A Puhuri 60 1A
Puhuri 50 1A floor plan

Starter block heading

Tips for first-time builders

Lorem ipsum dolor sit amet, consectetur adipiscing elit, sed do eiusmod tempor incididunt ut labore et dolore magna.

Read more

Tips for first-time builders

Lorem ipsum dolor sit amet, consectetur adipiscing elit, sed do eiusmod tempor incididunt ut labore et dolore magna.

Read more

Tips for first-time builders

Lorem ipsum dolor sit amet, consectetur adipiscing elit, sed do eiusmod tempor incididunt ut labore et dolore magna.

Read more
pineo-alue-2025-004-1536x1097

Order a free catalog

Explore our collections by browsing the catalog and pick up inspiring ideas for building your own log home or cabin.