Skip to content
Suomi – Suomi
Mallisto / Hirsimökit ja -huvilat / Rantama 77 1A

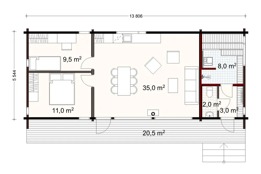
Rantama 77 1A

71.5 m² / 76.5 m²

Variantit
Rantama 57 1A Rantama 77 1A
Rantama 77 1A
Rantama 77 1A Rantama 77 1A
Kuvaus

Kuvat ovat visualisointeja Rantama 57 1A -mallista.

Honka Rantama on virtaviivaisen kaunis kesämökkimalli, joka on saanut innoituksensa 70-luvun ajattomasta mökkiarkkitehtuurista. Vihreä talo -blogista tuttu sisustusvaikuttaja Annika Meder-Liikanen on suunnitellut mökkimallin yhdessä Hongan arkkitehtien kanssa; Rantamassa on kesämökille kaikki olennainen, mutta silti reilusti tilaa oleskelulle. Sen syvää rauhaa huokuvan mökkitunnelman kruunaa isot ikkunat, jotka tuovat maiseman intensiteetin hienolla tavalla oleskelutilaan.

Mökkimallin suunnittelua ohjasi ympäristöystävällisyys ja neliöiden tehokas hyötykäyttö. Pienemmässä mallissa on vain välttämättömimmät toiminnot ja molemmissa kokoluokissa on myös tilava pesusauna. Ensimmäinen Rantama nousee Annikan perheen mökiksi Etelä-Savoon järven rannalle.

Yleiskatsaus
Nimi
Rantama 77 1A
Pinta-ala, brutto
76.5 m2
Pinta-ala, netto
71.5 m2
Kerrokset
1
Makuuhuoneet
2
Kylpyhuoneet
1
WC:t
1
Honka-tunniste
50080

Pohjakuvat

Variantit
Rantama 57 1A Rantama 77 1A
Rantama 77 1A floor plan

Starter block heading

Tips for first-time builders

Lorem ipsum dolor sit amet, consectetur adipiscing elit, sed do eiusmod tempor incididunt ut labore et dolore magna.

Read more

Tips for first-time builders

Lorem ipsum dolor sit amet, consectetur adipiscing elit, sed do eiusmod tempor incididunt ut labore et dolore magna.

Read more

Tips for first-time builders

Lorem ipsum dolor sit amet, consectetur adipiscing elit, sed do eiusmod tempor incididunt ut labore et dolore magna.

Read more
pineo-alue-2025-004-1536x1097

Order a free catalog

Explore our collections by browsing the catalog and pick up inspiring ideas for building your own log home or cabin.