Skip to content
Suomi – Suomi
Mallisto / Hirsimökit ja -huvilat / Rock 40 2A

Rock 40 2A

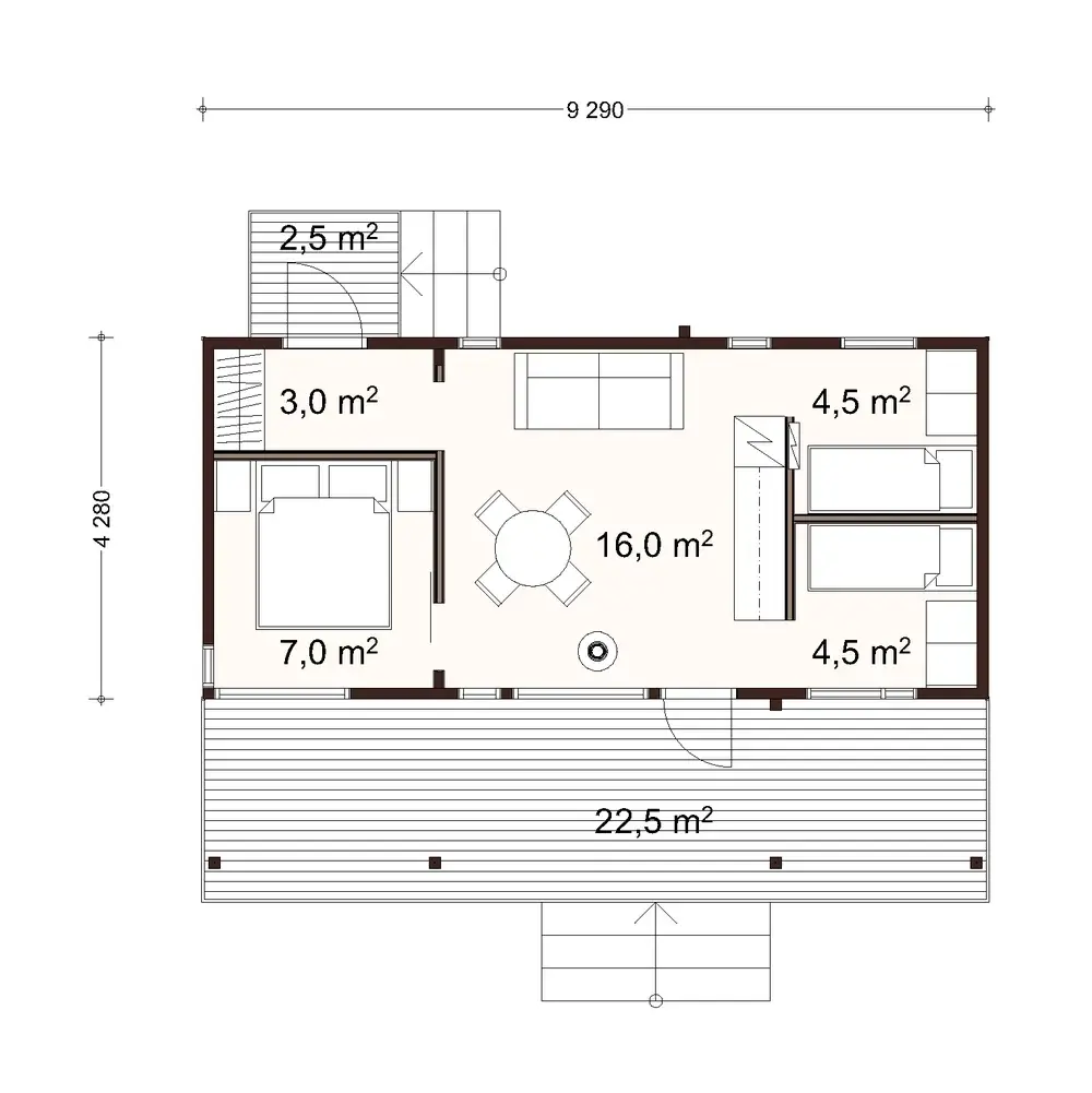
36 m² / 40 m²

Variantit
Rock 40 2A
Rock 40 2A Rock 40 2A
Kuvaus

Honka Rock -hirsimökki on näyttävä, arkkitehtuuriltaan moderni ja sisältä jylhä. Selkeälinjainen pulpettikatto ja suuret maisemaikkunat nostavat maiseman pääosaan. Honka Rock on tilasuunnittelultaan tehokas, hinta on kohtuullinen ja lopputulos tunnettua Honka-laatua.

Mökistä on saatavilla neljä eri kokovariaatiota: 40-, 50-, 65- ja 78-neliötä, joita voit muokata tarpeisiisi sopivaksi. Ikkunat avautuvat kahteen suuntaan ja luonto tulvii sisään. Mökeissä on markkinoiden tehokkaimmat neliöt, esimerkiksi 40-neliön kokoluokkaan on sovitettu jopa kolme makuualkovia. Voit valita saunallisen tai saunattoman pohjaratkaisun, mallistoon on myös suunniteltu tyyliin sopivat saunamökit ja aitat.

Tutustu Honka Rock & Star -mallistoon ja suunnittele omasi maailman johtavan lomarakentajan kanssa!

Kuvat on visualisointeja Rock 50 1A ja Rock 78 1A -malleista.

Yleiskatsaus
Nimi
Rock 40 2A
Pinta-ala, brutto
40 m2
Pinta-ala, netto
36 m2
Kerrokset
1
Makuuhuoneet
3
Honka-tunniste
50264

Pohjakuvat

Variantit
Rock 40 2A floor plan

Starter block heading

Tips for first-time builders

Lorem ipsum dolor sit amet, consectetur adipiscing elit, sed do eiusmod tempor incididunt ut labore et dolore magna.

Read more

Tips for first-time builders

Lorem ipsum dolor sit amet, consectetur adipiscing elit, sed do eiusmod tempor incididunt ut labore et dolore magna.

Read more

Tips for first-time builders

Lorem ipsum dolor sit amet, consectetur adipiscing elit, sed do eiusmod tempor incididunt ut labore et dolore magna.

Read more
pineo-alue-2025-004-1536x1097

Order a free catalog

Explore our collections by browsing the catalog and pick up inspiring ideas for building your own log home or cabin.