Skip to content
Suomi – Suomi
Mallisto / Hirsimökit ja -huvilat / Saaga 100 1A

Saaga 100 1A

92.5 m² / 100.5 m²

Variantit
Saaga 100 1A
Saaga 100 1A Saaga 100 1A
Kuvaus

Visualisointi Saaga 80 1A talomallista

Suosittu Honka Saaga -saunamalli on saanut parikseen samaa tyyliä edustavan hirsihuvilan. Saaga on tyylikäs ja käytännöllinen hirsimökki, joka taipuu monenlaiseen vapaa-ajan asumisen tarpeeseen.

Honka Maisema Plus ikkuna päästää luonnonvalon sisään ja avaa päämakuuhuoneesta ja olohuoneesta huikeat näkymät ympäröivään maisemaan. Asuintilat ja saunatilat on sijoitettu sisäänkäynnin molemmin puolin, jolloin sauna ei pääse kuumentamaan makuutiloja. Pohjaratkaisu on mitoitettu tehokkaaksi ja järkeväksi siten, että tilaa jää oikeisiin paikkoihin.

Yleiskatsaus
Nimi
Saaga 100 1A
Pinta-ala, brutto
100.5 m2
Pinta-ala, netto
92.5 m2
Kerrokset
1
Makuuhuoneet
2
Kylpyhuoneet
1
WC:t
1
Honka-tunniste
36451

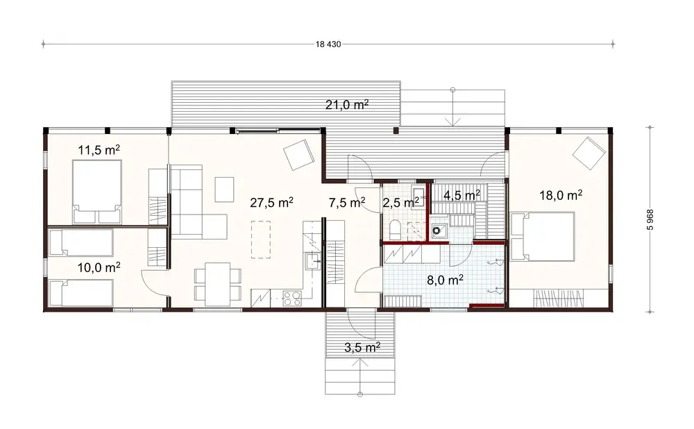
Pohjakuvat

Variantit
Saaga 100 1A floor plan

Starter block heading

Tips for first-time builders

Lorem ipsum dolor sit amet, consectetur adipiscing elit, sed do eiusmod tempor incididunt ut labore et dolore magna.

Read more

Tips for first-time builders

Lorem ipsum dolor sit amet, consectetur adipiscing elit, sed do eiusmod tempor incididunt ut labore et dolore magna.

Read more

Tips for first-time builders

Lorem ipsum dolor sit amet, consectetur adipiscing elit, sed do eiusmod tempor incididunt ut labore et dolore magna.

Read more
pineo-alue-2025-004-1536x1097

Order a free catalog

Explore our collections by browsing the catalog and pick up inspiring ideas for building your own log home or cabin.