Skip to content
Suomi – Suomi

Saimi 94 1A

Variantit
Saimi 94 1A
Saimi 94 1A
Kuvaus

Honka Saimi on uudistunut mökkiklassikko, jonka suosion salaisuus ovat korkeat päätyikkunat, tehokas pohjaratkaisu ja upea estradi maisemaan. Sen juuret juontuvat Honkarakenteen legendaariseen Tähti-mökkimallistoon.

Tämän vapaa-ajan asunnon keskiössä ovat korkea olohuone, keittiö ja ruokailutila sekä reilu katettu terassi päämaisemaan. Jo 60-neliön mökkimallissa on kaksi hyvänkokoista makuuhuonetta ja 80-neliön versiossa lisäksi parvitila.

Yleiskatsaus
Nimi
Saimi 94 1A
Pinta-ala, brutto
94 m²
Pinta-ala, netto
88 m²
Honka-tunniste
50108

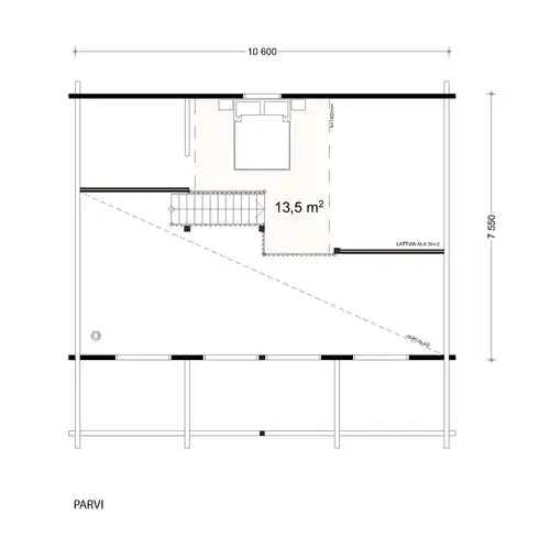
Pohjakuvat

Variantit
Saimi 94 1A floor plan
Saimi 94 1A floor plan

Starter block heading

Tips for first-time builders

Lorem ipsum dolor sit amet, consectetur adipiscing elit, sed do eiusmod tempor incididunt ut labore et dolore magna.

Read more

Tips for first-time builders

Lorem ipsum dolor sit amet, consectetur adipiscing elit, sed do eiusmod tempor incididunt ut labore et dolore magna.

Read more

Tips for first-time builders

Lorem ipsum dolor sit amet, consectetur adipiscing elit, sed do eiusmod tempor incididunt ut labore et dolore magna.

Read more
pineo-alue-2025-004-1536x1097

Order a free catalog

Explore our collections by browsing the catalog and pick up inspiring ideas for building your own log home or cabin.