Sirius 50 1A
45.5 m² / 50 m²
Kuvaus
Sirius on yksi rakastetuimmista vapaa-ajan huvilamalleistamme
Sirius-mallin upea lasiseinä tarjoaa muuttuvat näkymät ympäri vuoden ja vuorokauden: kesällä veden ja vehreän luonnon, syksyllä ruskan runsaat värit, talvella pakkasyön tähtitaivaat. Keittiö ja olohuone muodostavat yhtenäisen, avaran tilan, jossa voit nauttia lasiseinän kautta avautuvista maisemista. 80-neliöisessä mallissa on sauna ja kodinhoitohuone. Lasiseinä tarjoaa upeat näkymät myös päämakuuhuoneesta.
Yleiskatsaus
- Nimi
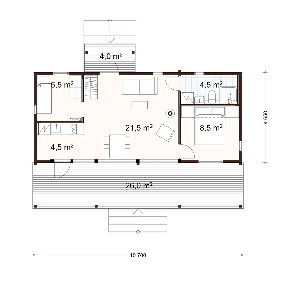
- Sirius 50 1A
- Pinta-ala, brutto
- 50 m2
- Pinta-ala, netto
- 45.5 m2
- Kerrokset
- 1
- Makuuhuoneet
- 2
- Kylpyhuoneet
- 1
- WC:t
- 1
- Honka-tunniste
- 50417
Pohjakuvat
Kuvagalleria
Starter block heading
Tips for first-time builders
Lorem ipsum dolor sit amet, consectetur adipiscing elit, sed do eiusmod tempor incididunt ut labore et dolore magna.
Tips for first-time builders
Lorem ipsum dolor sit amet, consectetur adipiscing elit, sed do eiusmod tempor incididunt ut labore et dolore magna.
Tips for first-time builders
Lorem ipsum dolor sit amet, consectetur adipiscing elit, sed do eiusmod tempor incididunt ut labore et dolore magna.