Skip to content
Suomi – Suomi
Mallisto Hirsimökit ja -huvilat Soihtu 70 4A

Soihtu 70 4A

Variantit
Soihtu 70 4A
Soihtu 70 4A
Kuvaus

Perinteistä mökkitunnelmaa huokuva Honka Soihtu on viihtyisä ja mutkaton kestosuosikkimallimme.

Soihdusta on useampia kokovaihtoehtoja ja tämä malli on toiminut monen vapaa-ajan huvilan suunnittelun pohjana. Soihdun aikaa kestävä ulkomuoto ja kompakti tilasuunnittelu yhdistyvät luontevasti isoon kolmiomaiseen ikkunaseinään, joka antaa modernin silauksen huvilan perinteikkääseen ilmeeseen. Suuret ikkunat valaisevat Soihtu-mökin olohuoneen ja ruokailutilan. Kuistin voi halutessaan lasittaa, jolloin ulkotiloista voi nauttia pitkälle syksyyn.

Yleiskatsaus
Nimi
Soihtu 70 4A
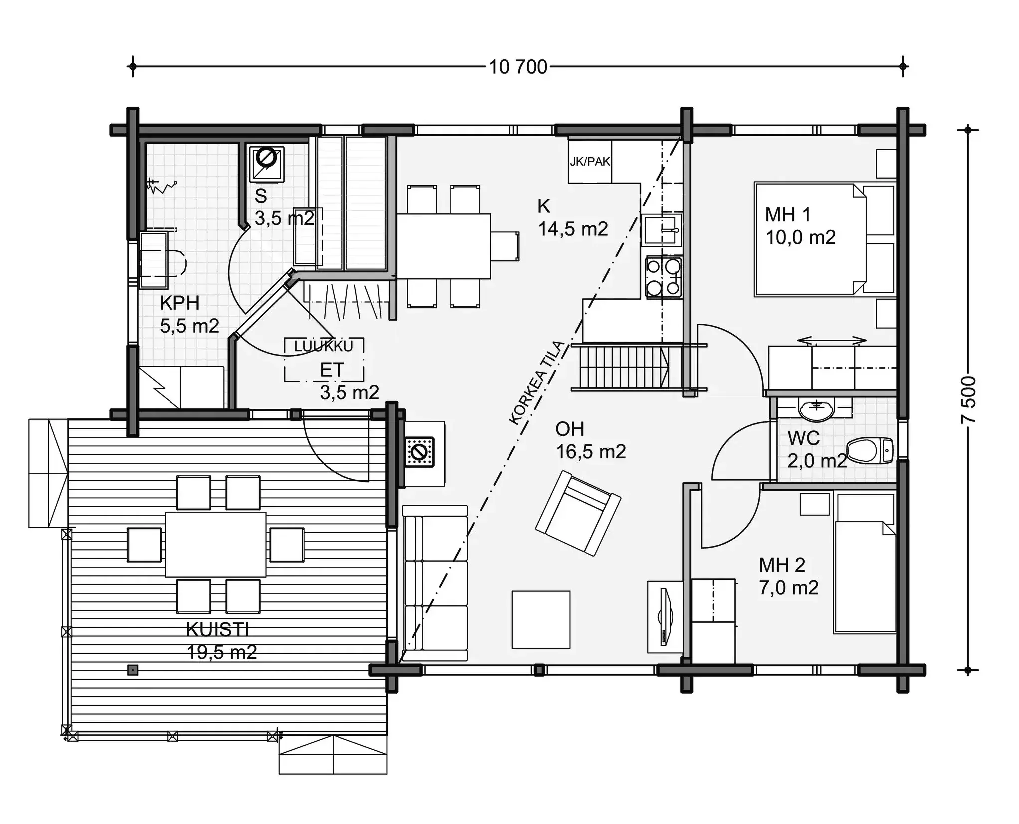
Pinta-ala, brutto
69.5 m²
Pinta-ala, netto
64.5 m²
Honka-tunniste
12991

Pohjakuvat

Variantit
Soihtu 70 4A floor plan
Soihtu 70 4A floor plan
Soihtu 70 4A facade

Starter block heading

Tips for first-time builders

Lorem ipsum dolor sit amet, consectetur adipiscing elit, sed do eiusmod tempor incididunt ut labore et dolore magna.

Read more

Tips for first-time builders

Lorem ipsum dolor sit amet, consectetur adipiscing elit, sed do eiusmod tempor incididunt ut labore et dolore magna.

Read more

Tips for first-time builders

Lorem ipsum dolor sit amet, consectetur adipiscing elit, sed do eiusmod tempor incididunt ut labore et dolore magna.

Read more
pineo-alue-2025-004-1536x1097

Order a free catalog

Explore our collections by browsing the catalog and pick up inspiring ideas for building your own log home or cabin.