Star 40 5A
36 m² / 40 m²
Kuvaus
Aitat tähdittävät jälleen mökkimallistoamme! Honka Star -aitan kaunis harjakatto ja maisemaikkunat luovat tilantuntua ja avaruutta lomailuun. Aitta on tilasuunnittelultaan tehokas, hinta on kohdillaan ja lopputulos tunnettua Honka-laatua.
Tutustu valmiisiin kokovariaatioihin, joita voit myös muokata tarpeisiisi sopivaksi. Honka Star -makuuaitta tarjoaa sekä tilavat oleskelutilat että tehokkaat nukkumatilat mökkiseurueellesi. 29-neliöinen parvellinen aitta on varsinainen tilaihme; alakertaan mahtuu ison oleskelutilan lisäksi kaksi makuutilaa tai yksi makuutila ja wc.
Yleiskatsaus
- Nimi
- Star 40 5A
- Pinta-ala, brutto
- 40 m2
- Pinta-ala, netto
- 36 m2
- Kerrokset
- 1.5
- Makuuhuoneet
- 1
- Kylpyhuoneet
- 1
- Honka-tunniste
- 50474
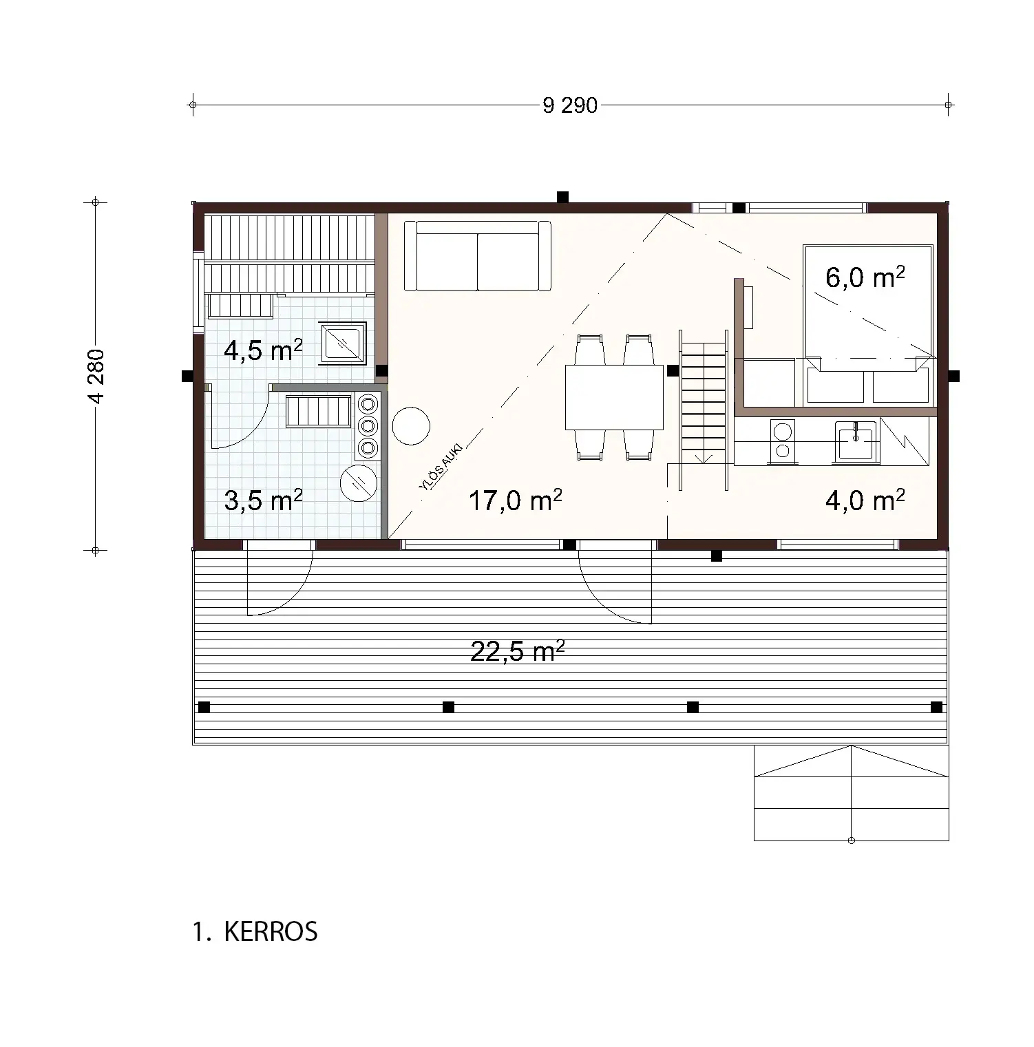
Pohjakuvat
Kuvagalleria
Starter block heading
Tips for first-time builders
Lorem ipsum dolor sit amet, consectetur adipiscing elit, sed do eiusmod tempor incididunt ut labore et dolore magna.
Tips for first-time builders
Lorem ipsum dolor sit amet, consectetur adipiscing elit, sed do eiusmod tempor incididunt ut labore et dolore magna.
Tips for first-time builders
Lorem ipsum dolor sit amet, consectetur adipiscing elit, sed do eiusmod tempor incididunt ut labore et dolore magna.