Skip to content
Suomi – Suomi
Mallisto / Hirsimökit ja -huvilat / Storm 50 2A

Storm 50 2A

45.5 m² / 50 m²

Variantit
Storm 50 1A Storm 50 2A Storm 65 1A
Storm 50 2A
Storm 50 2A Storm 50 2A
Kuvaus

Kuvat on visualisointeja Storm 50 1A -mallista.

Tyylikäs hirsihuvila Honka Storm hurmaa valoisalla tupakeittiöllä, josta aukeaa suuret maisemaikkunat kahteen ilmansuuntaan. Huvilasta löytyy kaksi katettua terassia, jotka ovat lasitettavissa. Kapearunkoinen Storm soveltuu erittäin hyvin myös rinnemaastoon.

Yleiskatsaus
Nimi
Storm 50 2A
Pinta-ala, brutto
50 m2
Pinta-ala, netto
45.5 m2
Kerrokset
1
Makuuhuoneet
2
WC:t
1
Honka-tunniste
50396

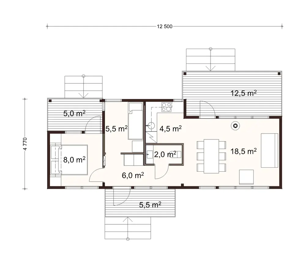
Pohjakuvat

Variantit
Storm 50 1A Storm 50 2A Storm 65 1A
Storm 50 2A floor plan

Starter block heading

Tips for first-time builders

Lorem ipsum dolor sit amet, consectetur adipiscing elit, sed do eiusmod tempor incididunt ut labore et dolore magna.

Read more

Tips for first-time builders

Lorem ipsum dolor sit amet, consectetur adipiscing elit, sed do eiusmod tempor incididunt ut labore et dolore magna.

Read more

Tips for first-time builders

Lorem ipsum dolor sit amet, consectetur adipiscing elit, sed do eiusmod tempor incididunt ut labore et dolore magna.

Read more
pineo-alue-2025-004-1536x1097

Order a free catalog

Explore our collections by browsing the catalog and pick up inspiring ideas for building your own log home or cabin.