Skip to content
Suomi – Suomi
Mallisto Hirsimökit ja -huvilat Syli 100 1A

Syli 100 1A

Variantit
Syli 100 1A
Syli 100 1A
Kuvaus

Honka Syli -sarjan tunnelmallisten lomakotien katettu terassi ja sisätilojen kokonaisuus muodostavat lämpimän sylin, jonne on helppo kaivata arjen kiireen keskellä.

Lomakodista on useampia versioita, alkaen 60-neliöisestä mökistä aina 90-neliöiseen, saunalla ja suurella terassilla varustettuun lomakotiin asti. Halutessasi voit varustaa Sylin ulkotakalla, jonka ääressä viettää tunnelmallisia pimeneviä iltoja.

Yleiskatsaus
Nimi
Syli 100 1A
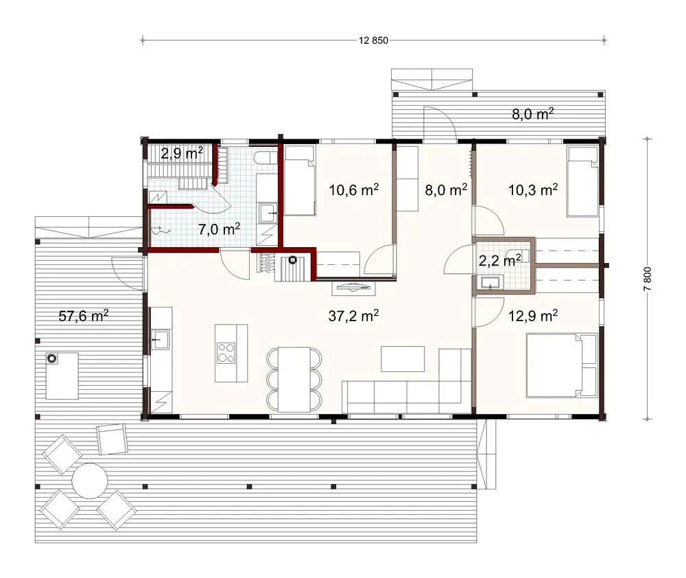
Pinta-ala, brutto
100 m²
Pinta-ala, netto
94 m²
Honka-tunniste
33225

Pohjakuvat

Variantit
Syli 100 1A floor plan
Syli 100 1A facade

Starter block heading

Tips for first-time builders

Lorem ipsum dolor sit amet, consectetur adipiscing elit, sed do eiusmod tempor incididunt ut labore et dolore magna.

Read more

Tips for first-time builders

Lorem ipsum dolor sit amet, consectetur adipiscing elit, sed do eiusmod tempor incididunt ut labore et dolore magna.

Read more

Tips for first-time builders

Lorem ipsum dolor sit amet, consectetur adipiscing elit, sed do eiusmod tempor incididunt ut labore et dolore magna.

Read more
pineo-alue-2025-004-1536x1097

Order a free catalog

Explore our collections by browsing the catalog and pick up inspiring ideas for building your own log home or cabin.