Skip to content
Suomi – Suomi
Mallisto / Hirsimökit ja -huvilat / Tuuli 100 2A

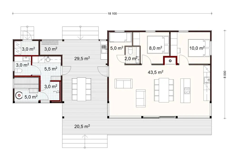
Tuuli 100 2A

91 m² / 99.5 m²

Variantit
Tuuli 100 2A
Tuuli 100 2A Tuuli 100 2A
Kuvaus

Vapaa-ajan asumisen esikuva Honka Tuuli tuo luonnon lähelle. Suomalaisesta saaristomaisemasta inspiraationsa saanut Tuuli-mallisto on purjelautailun olympiamitalistina tunnetun arkkitehdin Tuuli Petäjä-Sirénin suunnittelema.

Upea lasijulkisivu tuo luontokokemuksen osaksi asumista. Tyylikkäät saunatilat sijaitsevat rakennuksen toisessa osassa ja väliin jää suojaisa, katettu ulkotila.

Vastuullisesti kasvatetusta suomalaisesta puusta rakentuva Tuuli-huvila on Rakentaja.fi:n mökkiäänestyksen voittaja vuodelta 2020.

Yleiskatsaus
Nimi
Tuuli 100 2A
Pinta-ala, brutto
99.5 m2
Pinta-ala, netto
91 m2
Kerrokset
1
Makuuhuoneet
3
Kylpyhuoneet
1
WC:t
2
Honka-tunniste
35969

Pohjakuvat

Variantit
Tuuli 100 2A floor plan

Starter block heading

Tips for first-time builders

Lorem ipsum dolor sit amet, consectetur adipiscing elit, sed do eiusmod tempor incididunt ut labore et dolore magna.

Read more

Tips for first-time builders

Lorem ipsum dolor sit amet, consectetur adipiscing elit, sed do eiusmod tempor incididunt ut labore et dolore magna.

Read more

Tips for first-time builders

Lorem ipsum dolor sit amet, consectetur adipiscing elit, sed do eiusmod tempor incididunt ut labore et dolore magna.

Read more
pineo-alue-2025-004-1536x1097

Order a free catalog

Explore our collections by browsing the catalog and pick up inspiring ideas for building your own log home or cabin.