Tuuli 50 1A
44 m² / 49.5 m²
Kuvaus
Vapaa-ajan asumisen esikuva Honka Tuuli tuo luonnon lähelle. Suomalaisesta saaristomaisemasta inspiraationsa saanut Tuuli-mallisto on purjelautailun olympiamitalistina tunnetun arkkitehdin Tuuli Petäjä-Sirénin suunnittelema.
Upea lasijulkisivu tuo luontokokemuksen osaksi asumista. Tyylikkäät saunatilat sijaitsevat rakennuksen toisessa osassa ja väliin jää suojaisa, katettu ulkotila.
Vastuullisesti kasvatetusta suomalaisesta puusta rakentuva Tuuli-huvila on Rakentaja.fi:n mökkiäänestyksen voittaja vuodelta 2020.
Yleiskatsaus
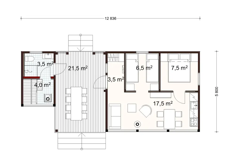
- Nimi
- Tuuli 50 1A
- Pinta-ala, brutto
- 49.5 m2
- Pinta-ala, netto
- 44 m2
- Kerrokset
- 1
- Makuuhuoneet
- 2
- Kylpyhuoneet
- 1
- WC:t
- 1
- Honka-tunniste
- 50393
Pohjakuvat
Kuvagalleria
Starter block heading
Tips for first-time builders
Lorem ipsum dolor sit amet, consectetur adipiscing elit, sed do eiusmod tempor incididunt ut labore et dolore magna.
Tips for first-time builders
Lorem ipsum dolor sit amet, consectetur adipiscing elit, sed do eiusmod tempor incididunt ut labore et dolore magna.
Tips for first-time builders
Lorem ipsum dolor sit amet, consectetur adipiscing elit, sed do eiusmod tempor incididunt ut labore et dolore magna.