Skip to content
Suomi – Suomi
Mallisto / Hirsimökit ja -huvilat / Tuuma 35 1A

Tuuma 35 1A

32 m² / 35 m²

Variantit
Tuuma 35 1A
Tuuma 35 1A Tuuma 35 1A
Kuvaus

Näyttävä Honka Tuuma on moderni mökki tai koti. Elävä puu ja moderni ulkonäkö muodostavat miellyttävän kontrastin toisilleen. Suuret ikkunapinnat sekä suojaisat terassi- ja parvekealueet liittävät ulkotilat luontevasti osaksi oleskelutiloja. Tuuma-mallistoon kuuluu erikokoisia vaihtoehtoja sekä vapaa-ajan huviloiksi että omakotitaloiksi. Erilaiset kokoluokat ja pohjaratkaisut tarjoavat laadukasta asumista niin pienille kuin suurillekin perheille.

"Tuuma-mallistossa puun parhaat ominaisuudet yhdistyvät nykyaikaiseen arkkitehtuuriin. Skandinaavisella selkeälinjaisella arkkitehtuurilla on kysyntää niin Suomessa kuin maailmalla."

Tanja Rytkönen, arkkitehti

Yleiskatsaus
Nimi
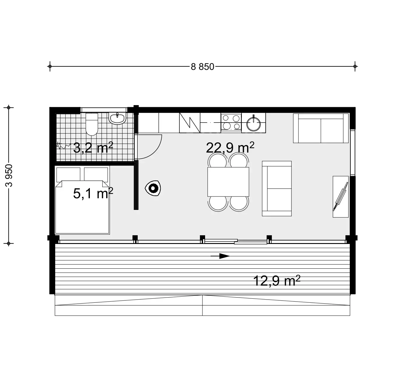
Tuuma 35 1A
Pinta-ala, brutto
35 m2
Pinta-ala, netto
32 m2
Kerrokset
1
Makuuhuoneet
1
WC:t
1
Honka-tunniste
30712

Pohjakuvat

Variantit
Tuuma 35 1A floor plan

Starter block heading

Tips for first-time builders

Lorem ipsum dolor sit amet, consectetur adipiscing elit, sed do eiusmod tempor incididunt ut labore et dolore magna.

Read more

Tips for first-time builders

Lorem ipsum dolor sit amet, consectetur adipiscing elit, sed do eiusmod tempor incididunt ut labore et dolore magna.

Read more

Tips for first-time builders

Lorem ipsum dolor sit amet, consectetur adipiscing elit, sed do eiusmod tempor incididunt ut labore et dolore magna.

Read more
pineo-alue-2025-004-1536x1097

Order a free catalog

Explore our collections by browsing the catalog and pick up inspiring ideas for building your own log home or cabin.