Tuuma 40 2A
36 m² / 40 m²
Kuvaus
Näyttävä Honka Tuuma on moderni mökki tai koti. Elävä puu ja moderni ulkonäkö muodostavat miellyttävän kontrastin toisilleen. Suuret ikkunapinnat sekä suojaisat terassi- ja parvekealueet liittävät ulkotilat luontevasti osaksi oleskelutiloja. Tuuma-mallistoon kuuluu erikokoisia vaihtoehtoja sekä vapaa-ajan huviloiksi että omakotitaloiksi. Erilaiset kokoluokat ja pohjaratkaisut tarjoavat laadukasta asumista niin pienille kuin suurillekin perheille.
"Tuuma-mallistossa puun parhaat ominaisuudet yhdistyvät nykyaikaiseen arkkitehtuuriin. Skandinaavisella selkeälinjaisella arkkitehtuurilla on kysyntää niin Suomessa kuin maailmalla."
Tanja Rytkönen, arkkitehti
Yleiskatsaus
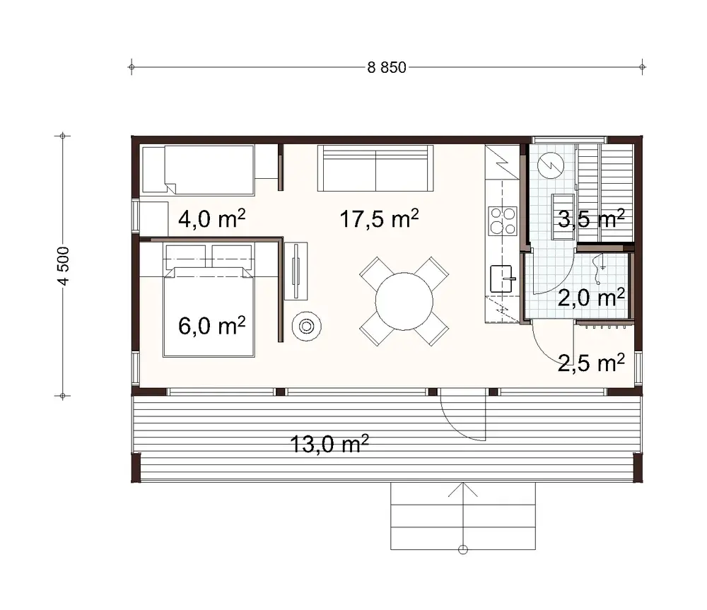
- Nimi
- Tuuma 40 2A
- Pinta-ala, brutto
- 40 m2
- Pinta-ala, netto
- 36 m2
- Kerrokset
- 1
- Makuuhuoneet
- 2
- Kylpyhuoneet
- 1
- Honka-tunniste
- 50386
Pohjakuvat
Kuvagalleria
Starter block heading
Tips for first-time builders
Lorem ipsum dolor sit amet, consectetur adipiscing elit, sed do eiusmod tempor incididunt ut labore et dolore magna.
Tips for first-time builders
Lorem ipsum dolor sit amet, consectetur adipiscing elit, sed do eiusmod tempor incididunt ut labore et dolore magna.
Tips for first-time builders
Lorem ipsum dolor sit amet, consectetur adipiscing elit, sed do eiusmod tempor incididunt ut labore et dolore magna.