Skip to content
Suomi – Suomi
Mallisto / Hirsimökit ja -huvilat / Tyrsky 92 1A

Tyrsky 92 1A

86 m² / 92 m²

Variantit
Tyrsky 106 1A Tyrsky 92 1A
Tyrsky 92 1A
Tyrsky 92 1A Tyrsky 92 1A
Kuvaus

Kuvat ja video ovat visualisointeja Tyrsky 106 1A -mallista.

Suomalaisesta rannikkomaisemasta inspiraationsa saanut Honka Tyrsky on nimensä mukaisesti luonteikas vapaa-ajanasunto, jossa on kallioihin iskevän aallon lujuutta ja sen jälkeistä rauhaa. Tehokkaaseen pohjaan on luotu avaruutta parvella sekä fiksusti sijoitetulla keittiöllä. Saunaosastolta on suora pääsy tilavalle ja katetulle ulkoterassille.

Tyrsky-huvilat ovat purjelautailun olympiamitalistina tunnetun arkkitehdin Tuuli Petäjä-Sirénin suunnittelemia.

Yleiskatsaus
Nimi
Tyrsky 92 1A
Pinta-ala, brutto
92 m2
Pinta-ala, netto
86 m2
Kerrokset
1.5
Makuuhuoneet
2
Kylpyhuoneet
1
WC:t
1
Honka-tunniste
50103

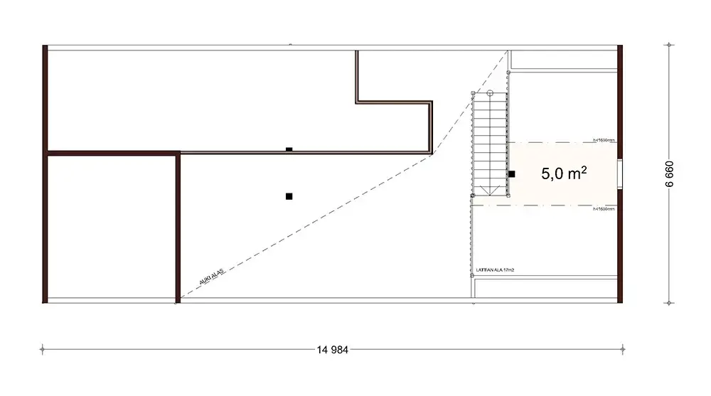
Pohjakuvat

Variantit
Tyrsky 106 1A Tyrsky 92 1A
Tyrsky 92 1A floor plan
Tyrsky 92 1A floor plan

Starter block heading

Tips for first-time builders

Lorem ipsum dolor sit amet, consectetur adipiscing elit, sed do eiusmod tempor incididunt ut labore et dolore magna.

Read more

Tips for first-time builders

Lorem ipsum dolor sit amet, consectetur adipiscing elit, sed do eiusmod tempor incididunt ut labore et dolore magna.

Read more

Tips for first-time builders

Lorem ipsum dolor sit amet, consectetur adipiscing elit, sed do eiusmod tempor incididunt ut labore et dolore magna.

Read more
pineo-alue-2025-004-1536x1097

Order a free catalog

Explore our collections by browsing the catalog and pick up inspiring ideas for building your own log home or cabin.