Skip to content
Suomi – Suomi
Mallisto Hirsimökit ja -huvilat Vinha 20 1A

Vinha 20 1A

Variantit
Vinha 20 1A
Vinha 20 1A
Kuvaus

Honka Vinha on tyylikäs ja käytännöllinen hirsimökki, joka taipuu monenlaiseen vapaa-ajan asumisen tarpeeseen. Vinhan pohjaratkaisu on mitoitettu tehokkaaksi ja järkeväksi siten, että tilaa jää oikeisiin paikkoihin. Suuret ikkunat päästävät luonnonvalon sisään ja avaavat huikeat näkymät ympäröivään maisemaan.

Yleiskatsaus
Nimi
Vinha 20 1A
Pinta-ala, brutto
20 m²
Pinta-ala, netto
17 m²
Honka-tunniste
50458

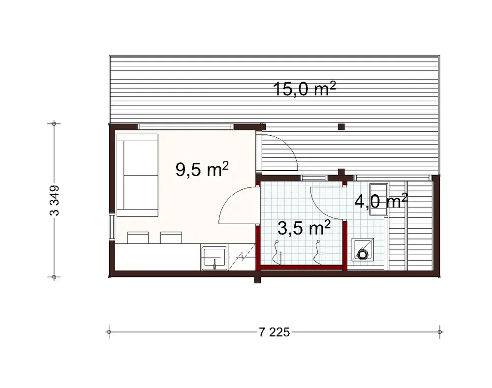
Pohjakuvat

Variantit
Vinha 20 1A floor plan
Vinha 20 1A facade

Starter block heading

Tips for first-time builders

Lorem ipsum dolor sit amet, consectetur adipiscing elit, sed do eiusmod tempor incididunt ut labore et dolore magna.

Read more

Tips for first-time builders

Lorem ipsum dolor sit amet, consectetur adipiscing elit, sed do eiusmod tempor incididunt ut labore et dolore magna.

Read more

Tips for first-time builders

Lorem ipsum dolor sit amet, consectetur adipiscing elit, sed do eiusmod tempor incididunt ut labore et dolore magna.

Read more
pineo-alue-2025-004-1536x1097

Order a free catalog

Explore our collections by browsing the catalog and pick up inspiring ideas for building your own log home or cabin.