Skip to content
Suomi – Suomi
Mallisto / Hirsimökit ja -huvilat / Vire 100 1A

Vire 100 1A

92 m² / 99.5 m²

Variantit
Vire 100 1A
Vire 100 1A Vire 100 1A
Kuvaus

Kuvat on visualisointeja Vire 65 1A -mallista.

Meren rantaan, metsän siimekseen ja järvimaisemaan kauniisti istuva Honka Vire on linjakas ja huolella suunniteltu vapaa-ajanviettopaikka. Suojaisa terassi aukeaa kummallekin puolelle taloa, suuret ikkunat kutsuvat ympäröivän luonnon sisään ja sauna sekä pesutilat ovat mukavasti päätiloista erillään.

Yleiskatsaus
Nimi
Vire 100 1A
Pinta-ala, brutto
99.5 m2
Pinta-ala, netto
92 m2
Kerrokset
1
Makuuhuoneet
3
Kylpyhuoneet
1
WC:t
1
Honka-tunniste
50456

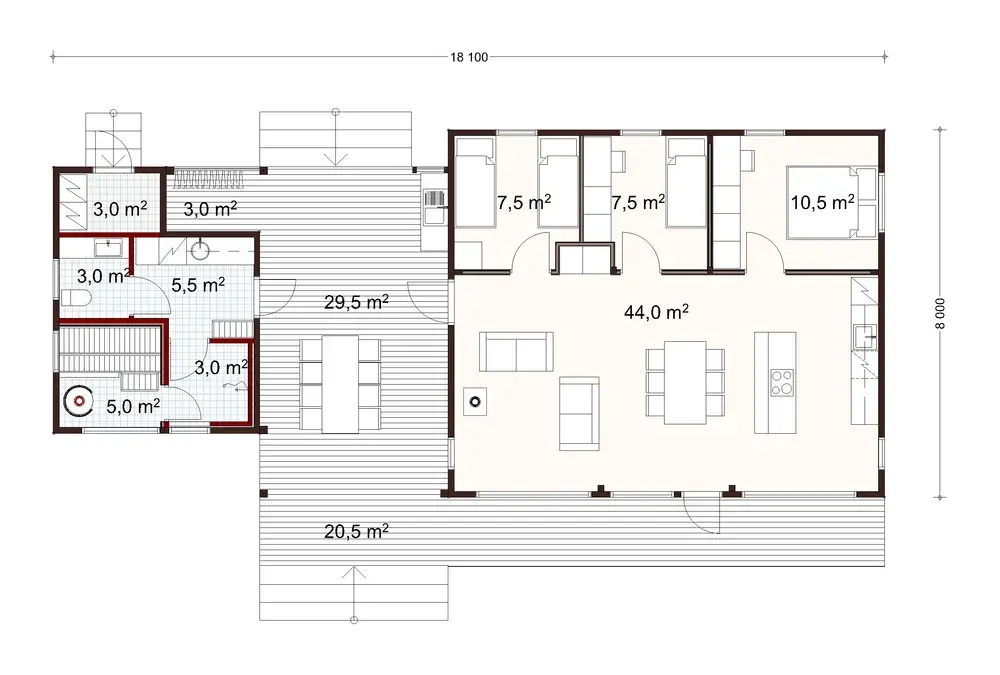
Pohjakuvat

Variantit
Vire 100 1A floor plan

Starter block heading

Tips for first-time builders

Lorem ipsum dolor sit amet, consectetur adipiscing elit, sed do eiusmod tempor incididunt ut labore et dolore magna.

Read more

Tips for first-time builders

Lorem ipsum dolor sit amet, consectetur adipiscing elit, sed do eiusmod tempor incididunt ut labore et dolore magna.

Read more

Tips for first-time builders

Lorem ipsum dolor sit amet, consectetur adipiscing elit, sed do eiusmod tempor incididunt ut labore et dolore magna.

Read more
pineo-alue-2025-004-1536x1097

Order a free catalog

Explore our collections by browsing the catalog and pick up inspiring ideas for building your own log home or cabin.