Vire 100 2A
Vire 100 2A
Kuvaus
Meren rantaan, metsän siimekseen ja järvimaisemaan kauniisti istuva Honka Vire on linjakas ja huolella suunniteltu vapaa-ajanviettopaikka. Suojaisa terassi aukeaa kummallekin puolelle taloa, suuret ikkunat kutsuvat ympäröivän luonnon sisään ja sauna sekä pesutilat ovat mukavasti päätiloista erillään.
Yleiskatsaus
- Nimi
- Vire 100 2A
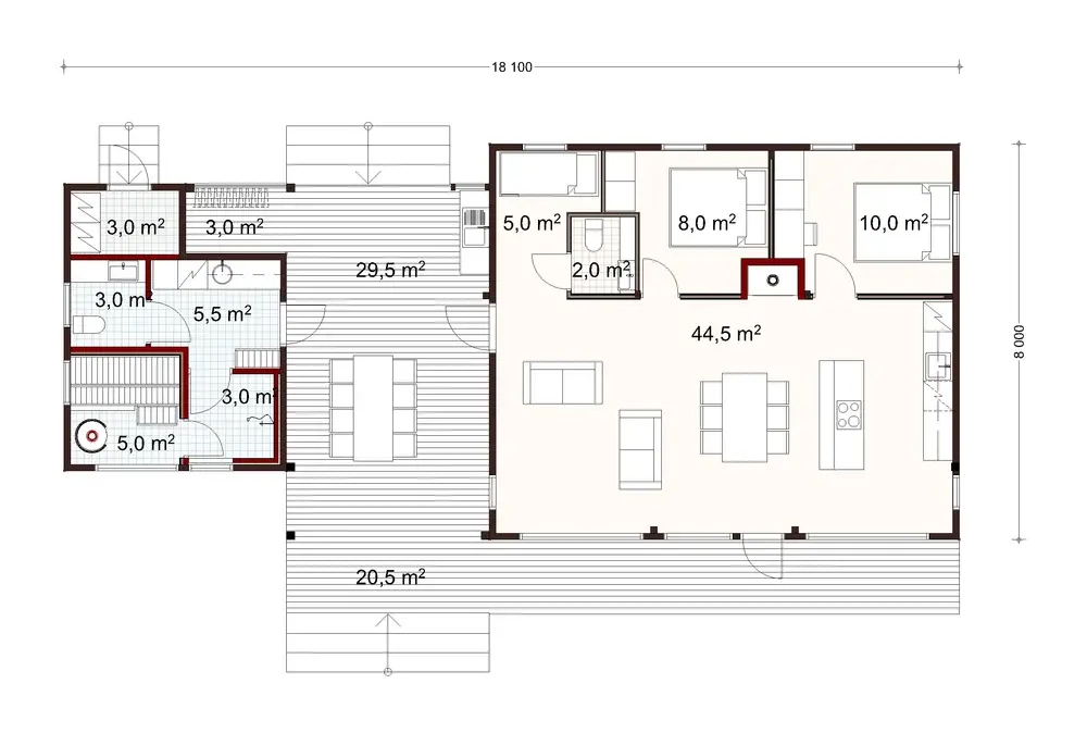
- Pinta-ala, brutto
- 99.5 m²
- Pinta-ala, netto
- 92 m²
- Honka-tunniste
- 50457
Pohjakuvat
Kuvagalleria
You might also be interested in
See allStarter block heading
Tips for first-time builders
Lorem ipsum dolor sit amet, consectetur adipiscing elit, sed do eiusmod tempor incididunt ut labore et dolore magna.
Tips for first-time builders
Lorem ipsum dolor sit amet, consectetur adipiscing elit, sed do eiusmod tempor incididunt ut labore et dolore magna.
Tips for first-time builders
Lorem ipsum dolor sit amet, consectetur adipiscing elit, sed do eiusmod tempor incididunt ut labore et dolore magna.
Order a free catalog
Explore our collections by browsing the catalog and pick up inspiring ideas for building your own log home or cabin.