Skip to content
Suomi – Suomi
Mallisto Hirsimökit ja -huvilat Virtamo 100 1A

Virtamo 100 1A

Variantit
Virtamo 100 1A Virtamo 64 1A Virtamo 80 1A
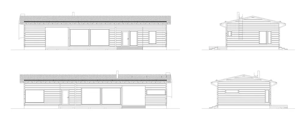
Virtamo 100 1A
Virtamo 100 1A
Kuvaus

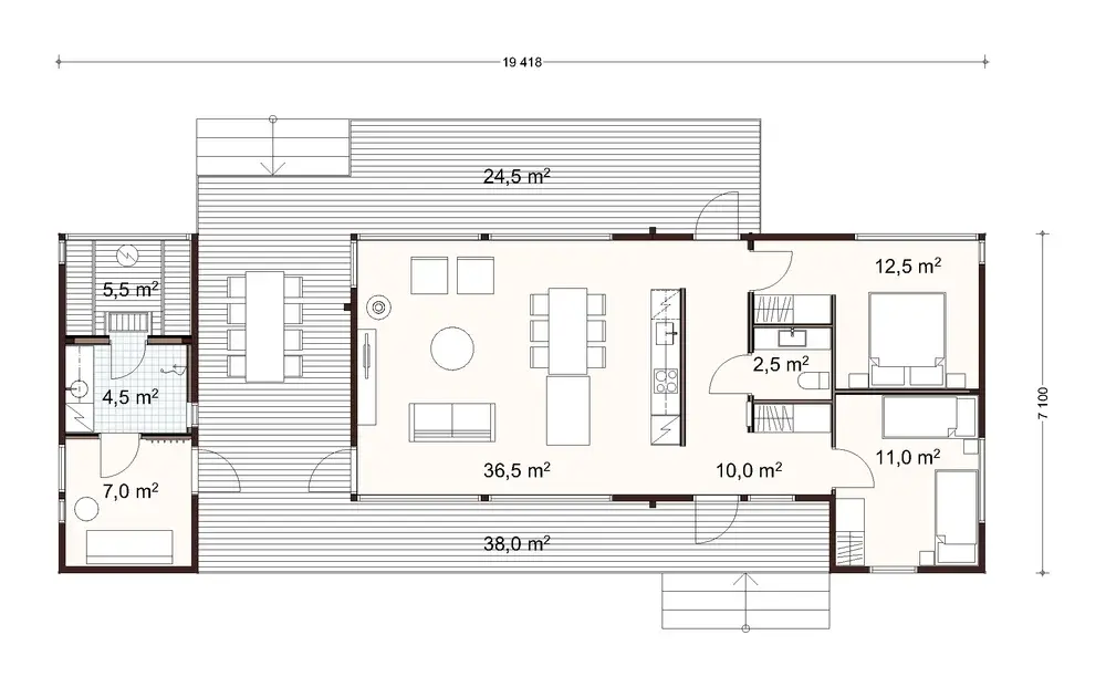
Virtaviivainen vapaa-ajan asunto Honka Virtamo tulvii luonnonvaloa. Molempiin suuntiin aukeavat suuret maisemaikkunat tuovat oleskelutilaan näyttävyyttä ja valoa, mikä mahdollistaa Virtamon sijoittamisen myös pohjoisrannalle. Tästä upeasta vapaa-ajan asunnosta löytyy kaksi tilavasti mitoitettua makuuhuonetta ja erilliseen saunaosastoon sijoitettu vierasmajoitustila. Rakennusten väliin jäävä katettu tila mahdollistaa isommankin seurueen suojaisan ruokailun ulkona. Välitilan voi myös lasittaa, jolloin terassilla voi oleskella aina varhaisesta keväästä myöhään syksyyn.

Yleiskatsaus
Nimi
Virtamo 100 1A
Pinta-ala, brutto
100 m²
Pinta-ala, netto
92 m²
Honka-tunniste
50173

Pohjakuvat

Variantit
Virtamo 100 1A Virtamo 64 1A Virtamo 80 1A
Virtamo 100 1A floor plan

Starter block heading

Tips for first-time builders

Lorem ipsum dolor sit amet, consectetur adipiscing elit, sed do eiusmod tempor incididunt ut labore et dolore magna.

Read more

Tips for first-time builders

Lorem ipsum dolor sit amet, consectetur adipiscing elit, sed do eiusmod tempor incididunt ut labore et dolore magna.

Read more

Tips for first-time builders

Lorem ipsum dolor sit amet, consectetur adipiscing elit, sed do eiusmod tempor incididunt ut labore et dolore magna.

Read more
pineo-alue-2025-004-1536x1097

Order a free catalog

Explore our collections by browsing the catalog and pick up inspiring ideas for building your own log home or cabin.