Mallisto / Hirsimökit ja -huvilat / Visio 40 1A
Visio 40 1A
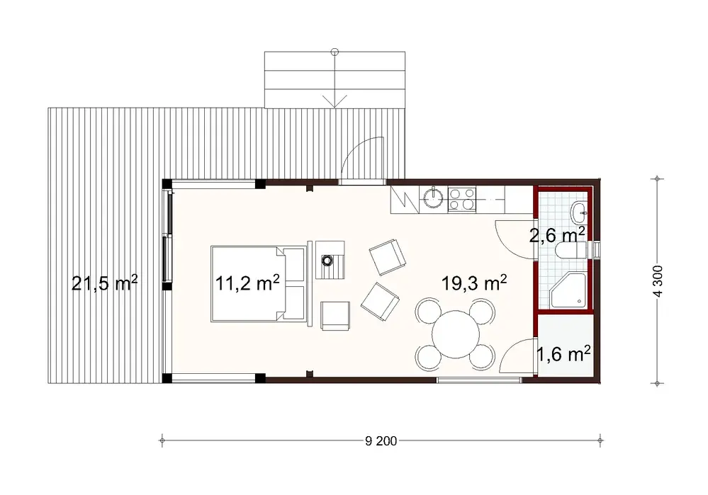
36.5 m² / 39.5 m²
Visio 40 1A
Visio 40 1A
Kuvaus
Visio on modernin vapaa-ajan rakentajan valinta. Tämä kompaktin vapaa-ajan kodin upea lasiseinä avaa näköalan 270 astetta ympäristöön.Luonto tulee osaksi sisätiloja ja piha-alueesta muodostuu toinen olohuone.
Yleiskatsaus
- Nimi
- Visio 40 1A
- Pinta-ala, brutto
- 39.5 m2
- Pinta-ala, netto
- 36.5 m2
- Kerrokset
- 1
- Makuuhuoneet
- 1
- Kylpyhuoneet
- 1
- WC:t
- 1
- Honka-tunniste
- 27158
Pohjakuvat
Kuvagalleria
Starter block heading
Tips for first-time builders
Lorem ipsum dolor sit amet, consectetur adipiscing elit, sed do eiusmod tempor incididunt ut labore et dolore magna.
Tips for first-time builders
Lorem ipsum dolor sit amet, consectetur adipiscing elit, sed do eiusmod tempor incididunt ut labore et dolore magna.
Tips for first-time builders
Lorem ipsum dolor sit amet, consectetur adipiscing elit, sed do eiusmod tempor incididunt ut labore et dolore magna.
Order a free catalog
Explore our collections by browsing the catalog and pick up inspiring ideas for building your own log home or cabin.