Mallisto / Hirsimökit ja -huvilat / Vuono 80 1A
Vuono 80 1A
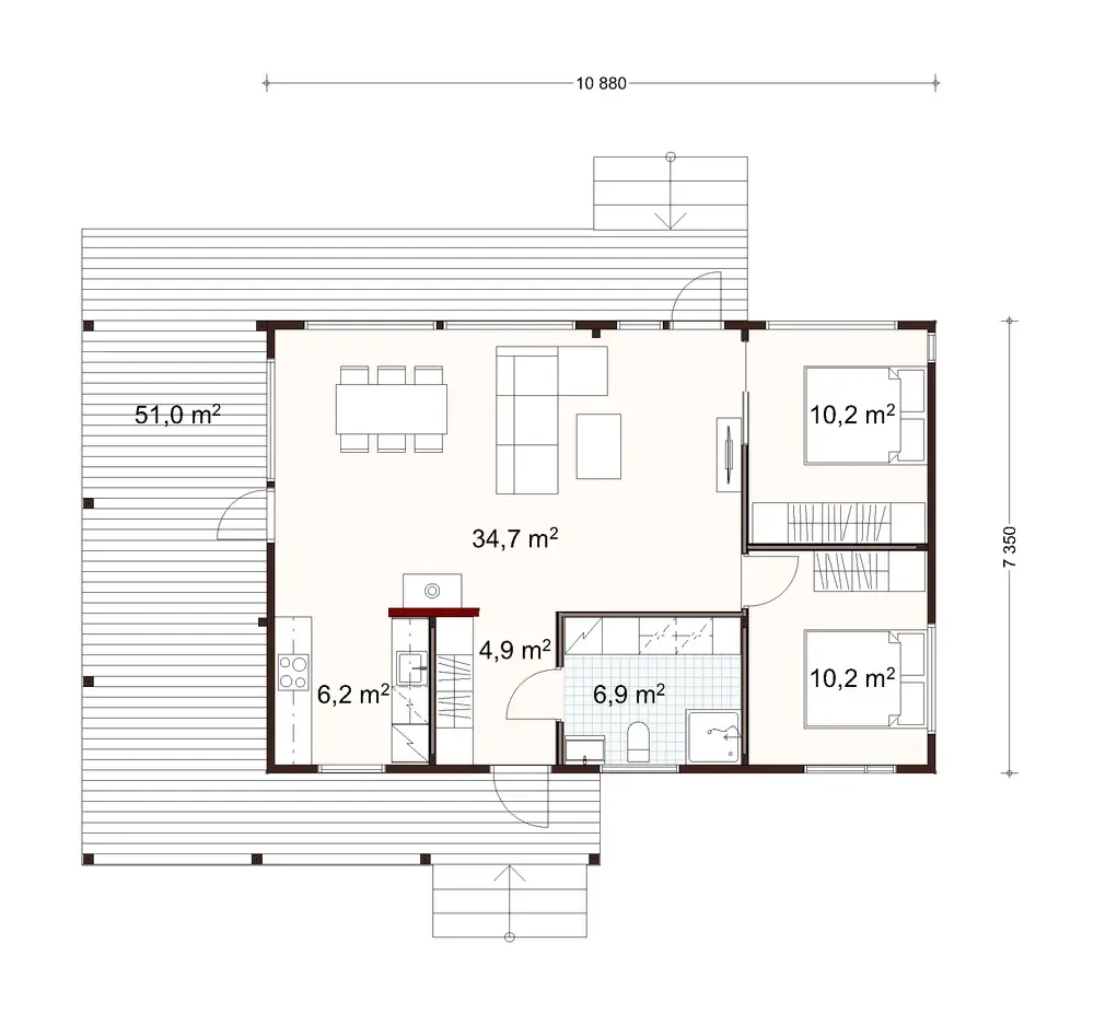
75 m² / 80 m²
Vuono 80 1A
Vuono 80 1A
Kuvaus
Kuvat on visualisointeja Vuono 100 1A ja 100 2A -malleista.
Honka Vuono on unelmien vapaa-ajanviettopaikka, jossa on tilaa yhteiselle ajanvietolle, tunnelmallisille saunahetkille ja omat rauhaisat nukkumatilat kolmen makuuhuoneen kera. Väljässä olohuoneessa suuret maisemaikkunat luovat avaruutta ja tuovat luonnon sisälle.
Yleiskatsaus
- Nimi
- Vuono 80 1A
- Pinta-ala, brutto
- 80 m2
- Pinta-ala, netto
- 75 m2
- Kerrokset
- 1
- Makuuhuoneet
- 2
- Kylpyhuoneet
- 1
- WC:t
- 1
- Honka-tunniste
- 50451
Pohjakuvat
Kuvagalleria
Starter block heading
Tips for first-time builders
Lorem ipsum dolor sit amet, consectetur adipiscing elit, sed do eiusmod tempor incididunt ut labore et dolore magna.
Tips for first-time builders
Lorem ipsum dolor sit amet, consectetur adipiscing elit, sed do eiusmod tempor incididunt ut labore et dolore magna.
Tips for first-time builders
Lorem ipsum dolor sit amet, consectetur adipiscing elit, sed do eiusmod tempor incididunt ut labore et dolore magna.
Order a free catalog
Explore our collections by browsing the catalog and pick up inspiring ideas for building your own log home or cabin.