Skip to content
Suomi – Suomi
Mallisto Hirsimökit ja -huvilat Wood Haven 80 1A

Wood Haven 80 1A

Variantit
Wood Haven 80 1A
Wood Haven 80 1A
Kuvaus

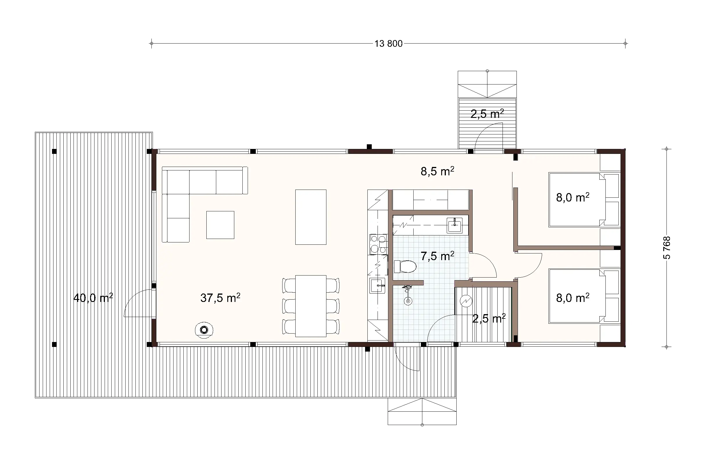
Honka Wood Haven on tehokas maisemahuvila, joka on suunniteltu pysähtymistä ja luontokokemusta varten. Avarasta oleskelutilasta avautuvat vaikuttavat panoraamanäkymät kolmeen eri suuntaan, ja yhtenäinen keittiö-ruokailu-olohuone on suunniteltu yhdessäololle. Hirsihuvilan design on selkeä: neliöt on sijoitettu oleskeluun ja maisemasta nauttiminen ovat etusijalla. Kaksi kompaktia makuutilaa suurin ikkunoin tarjoaa levollisen paikan vetäytyä. Valoisa eteistila ja kylpyhuone tuovat mukavuutta vapaa-aikaan. Hirsimökin laajat, katetut terassit ovat kuin toinen olohuone ulkona.

Huvilamalli on saatavilla eri kattovaihtoehdoilla ja pohjapiirustusta on helppo muokata tarpeidesi sekä tonttisi mukaan. Honka Wood Haven on osa Woodismi-konseptiamme – selkeälinjainen design, aikaa kestävä sisustustyyli ja uniikit tuoteratkaisut, joita et saa muualta.

Yleiskatsaus
Nimi
Wood Haven 80 1A
Pinta-ala, brutto
79.5 m²
Pinta-ala, netto
74.5 m²
Honka-tunniste
50540

Pohjakuvat

Variantit
Wood Haven 80 1A floor plan
Wood Haven 80 1A floor plan
Wood Haven 80 1A facade

Starter block heading

Tips for first-time builders

Lorem ipsum dolor sit amet, consectetur adipiscing elit, sed do eiusmod tempor incididunt ut labore et dolore magna.

Read more

Tips for first-time builders

Lorem ipsum dolor sit amet, consectetur adipiscing elit, sed do eiusmod tempor incididunt ut labore et dolore magna.

Read more

Tips for first-time builders

Lorem ipsum dolor sit amet, consectetur adipiscing elit, sed do eiusmod tempor incididunt ut labore et dolore magna.

Read more
pineo-alue-2025-004-1536x1097

Order a free catalog

Explore our collections by browsing the catalog and pick up inspiring ideas for building your own log home or cabin.