Skip to content
Suomi – Suomi
Mallisto / Residential house / Huomen 152 1A

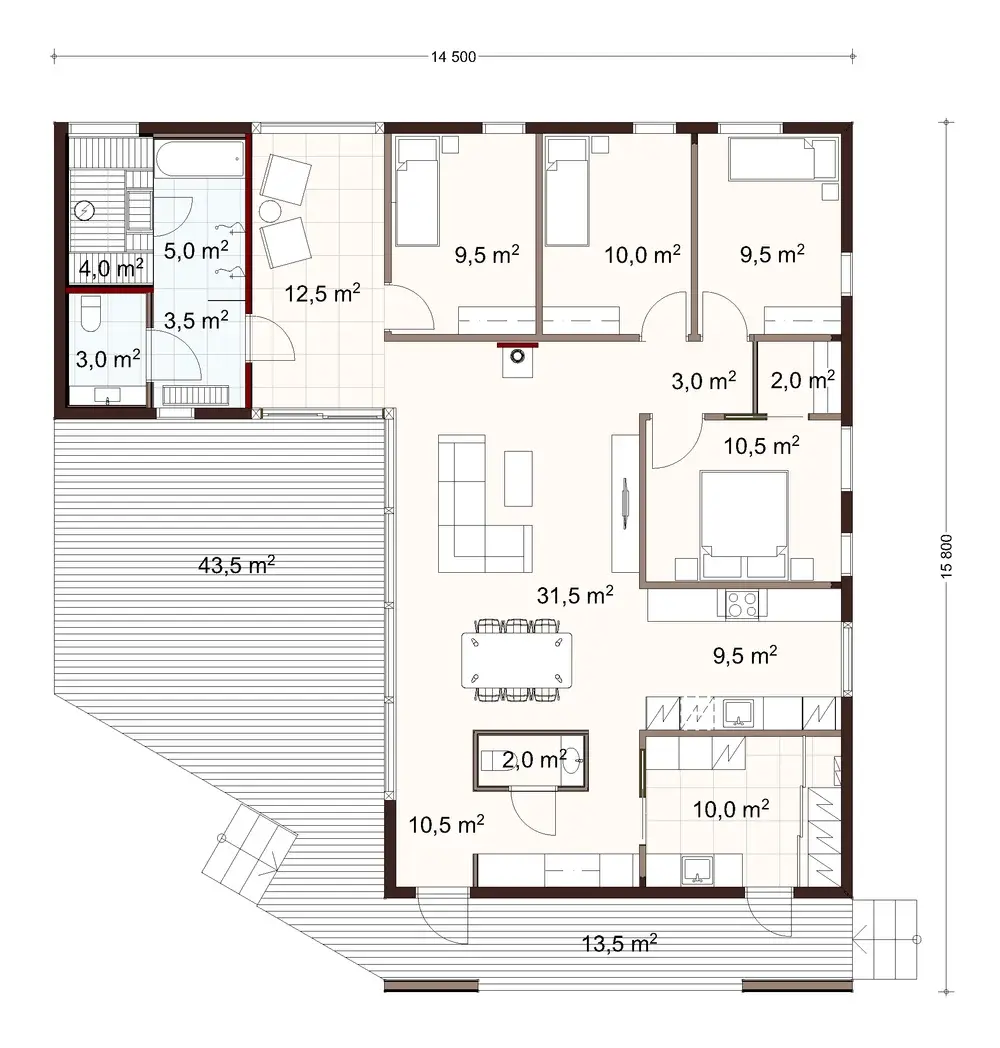
Huomen 152 1A

140 m2 net / 152 m2 gross

Variants
Huomen 152 1A
Huomen 152 1A Huomen 152 1A
Description

Kuvat ovat visualisointeja Huomen 133 1A -mallista

Huomen on Tuusulan asuntomessuilla v. 2020 esitelty hyvän elämän hirsikoti, joka ihastuttaa toimivan ja moneen elämäntilanteeseen sopivan pohjaratkaisunsa ansiosta.

Nykyaikaiset isot ikkunat tuovat valoa ja tilan tuntua olohuone-keittiötilaan, makuuhuoneet ovat omassa rauhassaan. L-mallisen talon suojaan jää rauhallinen piha-alue terasseineen. Huomenessa kaikki tärkeä on löytänyt paikkansa. Se on terveellinen, rauhallinen ja sujuvan arjen salliva hirsikoti.

Tutustu Honka Huomen -taloon virtuaalikierroksen avulla!

Overview
Name
Huomen 152 1A
Floor area
152 m2
Net area
140 m2
Floors
1
Bedrooms
4
Bathrooms
1
WCs
2
Honka ID
36673

Floor plan

Variants
Huomen 152 1A floor plan