Skip to content
Suomi – Suomi
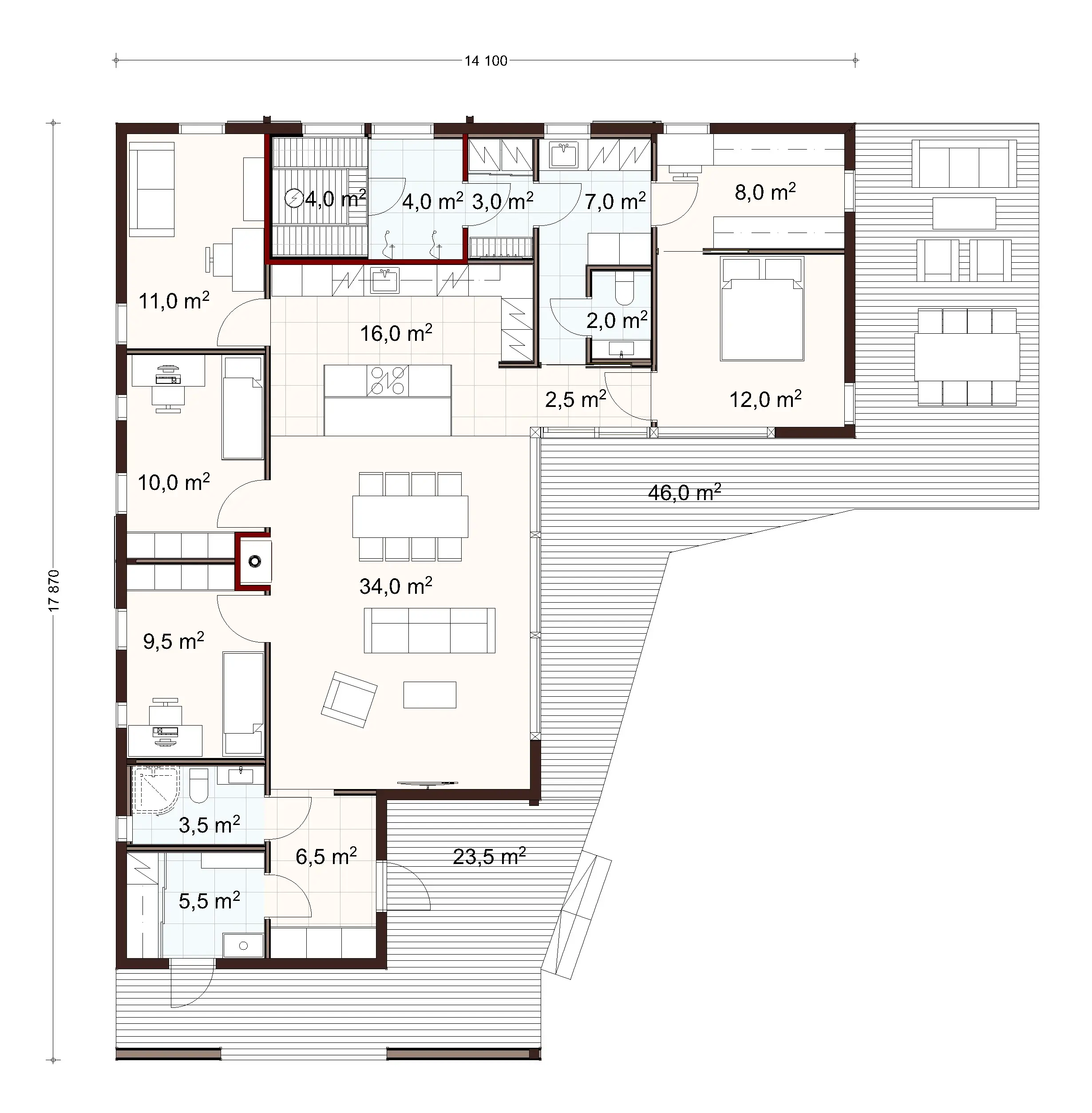
Mallisto Residential house Huomen 158 1A

Huomen 158 1A

Variants
Huomen 158 1A
Huomen 158 1A
Description

Honka Huomen on Tuusulan asuntomessuilla v. 2020 esitelty hyvän elämän hirsikoti, joka ihastuttaa toimivan ja moneen elämäntilanteeseen sopivan pohjaratkaisunsa ansiosta.

Nykyaikaiset isot ikkunat tuovat valoa ja tilan tuntua olohuone-keittiötilaan, makuuhuoneet ovat omassa rauhassaan. L-mallisen talon suojaan jää rauhallinen piha-alue terasseineen. Huomenessa kaikki tärkeä on löytänyt paikkansa. Se on terveellinen, rauhallinen ja sujuvan arjen salliva hirsikoti.

Tutustu Huomen-taloon virtuaalikierroksen avulla!

Overview
Name
Huomen 158 1A
Floor Area
157.5 m²
Apartment Area
145.5 m²
Honka ID
50065

Floor plan

Variants
Huomen 158 1A floor plan