Skip to content
Suomi – Suomi
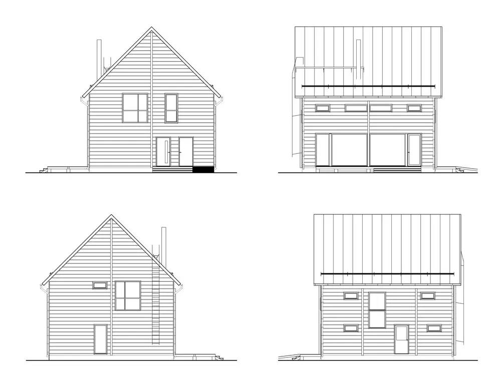
Mallisto / Residential house / Ink 160 1A

Ink 160 1A

141 m2 net / 156 m2 gross

Variants
Ink 160 1A Ink 170 1A Ink 185 1A
Ink 160 1A
Ink 160 1A Ink 160 1A
Description

Honka Ink on nuorekas näkemys ekologisesta, trendikkäästä ja terveellisestä hirsikodista. Ensimmäinen Honka Ink -malliston talo esiteltiin Mikkelin asuntomessuilla kesällä 2017. Nyt suosittu talomalli on saanut ympärilleen erilaisia pohja- ja kokovariaatioita erilaisiin tarpeisiin.

Kaikille malliston malleille on yhteistä jyrkkä harjakatto ja selkeä, pelkistetty muoto. Ruokailutila, olohuone ja keittiö yhdistyvät moderniksi oleskelutilaksi, jossa viihdytään kaksin tai ystävien kera ruokaa laittaen ja seurustellen. Kesällä oleskelutilat laajenevat terassille. Valoisan portaikon kautta kuljetaan yläkertaan, jossa sijaitsevat makuuhuoneet, työhuone sekä vaate- ja kylpyhuoneet.

Overview
Name
Ink 160 1A
Floor area
156 m2
Net area
141 m2
Floors
2
Bedrooms
3
Bathrooms
2
WCs
2
Honka ID
30267

Floor plan

Variants
Ink 160 1A Ink 170 1A Ink 185 1A
Ink 160 1A floor plan
Ink 160 1A floor plan