Skip to content
Suomi – Suomi
Mallisto / Residential house / Kunnas 147 1A

Kunnas 147 1A

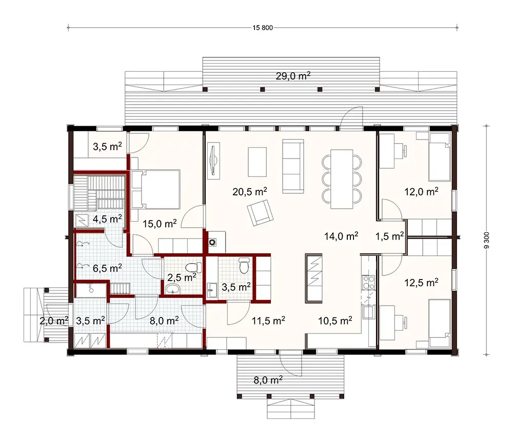
136 m2 net / 147 m2 gross

Kunnas 147 1A
Kunnas 147 1A Kunnas 147 1A
Description

Honka Kunnas on suosikki vuodesta toiseen ja syystä – tässä hirsikartanossa on omaa rauhaa ja tilaa perinteikkään tyylin ystäville. Vastuullisesti kasvatettu mäntymetsä jalostuu komeaksi hirsikodiksi, jolla on sekä kokoa että näköä.

Yksikerroksinen Kunnas 147 1A on talomalli, jossa isot ruutuikkunat tuovat valoa ja klassista tyylikkyyttä tilavaan tupakeittiöön. Toimiva pohjaratkaisu pitää sisällää esimerkiksi kuraeteisen, jonka kautta pääset kätevästi tilavaan kodinhoitohuoneeseen ja sieltä pääeteiseen. Lisäksi päämakuuhuoneesta on näppärästi käynti pesuhuoneeseen ja wc-tilaan. Kunnas-mallista on saatavilla myös 1,5- ja 2-kerroksiset versiot.

Overview
Name
Kunnas 147 1A
Floor area
147 m2
Net area
136 m2
Bathrooms
1
WCs
2
Honka ID
50007

Floor plan

Variants
Kunnas 147 1A
Kunnas 147 1A floor plan