Skip to content
Suomi – Suomi
Mallisto Residential house Kunnas 185 1A

Kunnas 185 1A

Variants
Kunnas 185 1A
Kunnas 185 1A
Description

Honka Kunnas on suosikki vuodesta toiseen ja syystä – tässä hirsikartanossa on omaa rauhaa ja tilaa perinteikkään tyylin ystäville. Vastuullisesti kasvatettu mäntymetsä jalostuu komeaksi hirsikodiksi, jolla on sekä kokoa että näköä.

Siinä missä toinen haaveilee minimalistisesta ja pelkistetystä tyylistä, voi toisen unelmana olla jykevä ja kodikas hirsikartano. Honka Kunnas on upea esimerkki kodista, jossa on omaa rauhaa ja tilaa perinteikkään tyylin ystävälle. Vastuullisesti kasvatettu mäntymetsä jalostuu tässä komeaksi hirsikodiksi, jolla on sekä kokoa että näköä. Koristeellisilla kuisteilla, pylväillä sekä erkkereillä saadaan taloon ilmeikkyyttä. Tutustu myös 1-kerroksiseen versioon.

Overview
Name
Kunnas 185 1A
Floor Area
183.5 m²
Apartment Area
166.5 m²
Honka ID
15640

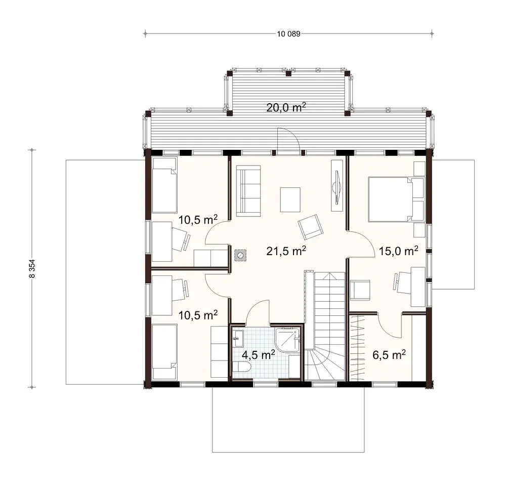
Floor plan

Variants
Kunnas 185 1A floor plan
Kunnas 185 1A floor plan
Kunnas 185 1A facade