Skip to content
Suomi – Suomi
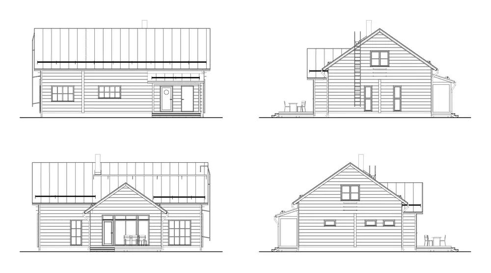
Mallisto Residential house Lounatuuli 172 1A

Lounatuuli 172 1A

Variants
Lounatuuli 172 1A
Lounatuuli 172 1A
Description

Honka Lounatuuli edustaa New England -tyyppistä arkkitehtuuria, joka vie ajatukset merelle ja rannalle – vaikka kotisi olisi keskellä kaupunkia. Talon muoto on klassinen, mutta selkeä ikkunajako ja arkkitehtuurin yksityiskohdat tekevät siitä modernin. Ikkunaristikoilla, värivalinnoilla ja sisustuksella muokkaat tästä kodista mieleisesi.

Lounatuulen saa myös 1,5-kerroksisena kotina. Kotisi voidaan tarpeen tullen rakentaa vaiheittain, jolloin pohjakerros rakennetaan ensin ja ullakkotila jää varaukseksi tulevaa varten. Lounatuuli on saatavissa joko korkealla oleskelutilalla, jossa on pyöreä yläikkuna, tai suoralla sisäkatolla. Tutustu myös 2-kerroksiseen Lounatuuli-malliin.

Overview
Name
Lounatuuli 172 1A
Floor Area
172 m²
Apartment Area
154 m²
Honka ID
23814

Floor plan

Variants
Lounatuuli 172 1A floor plan
Lounatuuli 172 1A floor plan
Lounatuuli 172 1A facade