Skip to content
Suomi – Suomi
Mallisto Residential house Mambo 175 1A

Mambo 175 1A

Variants
Mambo 175 1A
Mambo 175 1A
Description

Honka Mambo on tyylikäs moderni hirsikoti, jossa on sitä jotakin. Mambon suuret ikkunapinnat kutsuvat luonnonvalon osaksi sisustusta. Pulpettikaton alle jää valoisa ja korkea oleskelutila, jossa nauttia oleskelusta ja näkymistä suurten maisemaikkunoiden läpi. Saunatilat voidaan sijoittaa joko saman katon alle tai erilliseen pihasaunarakennukseen.

Valokuvissa on asiakkaalle muunneltu versio Mambo-mallista.

Overview
Name
Mambo 175 1A
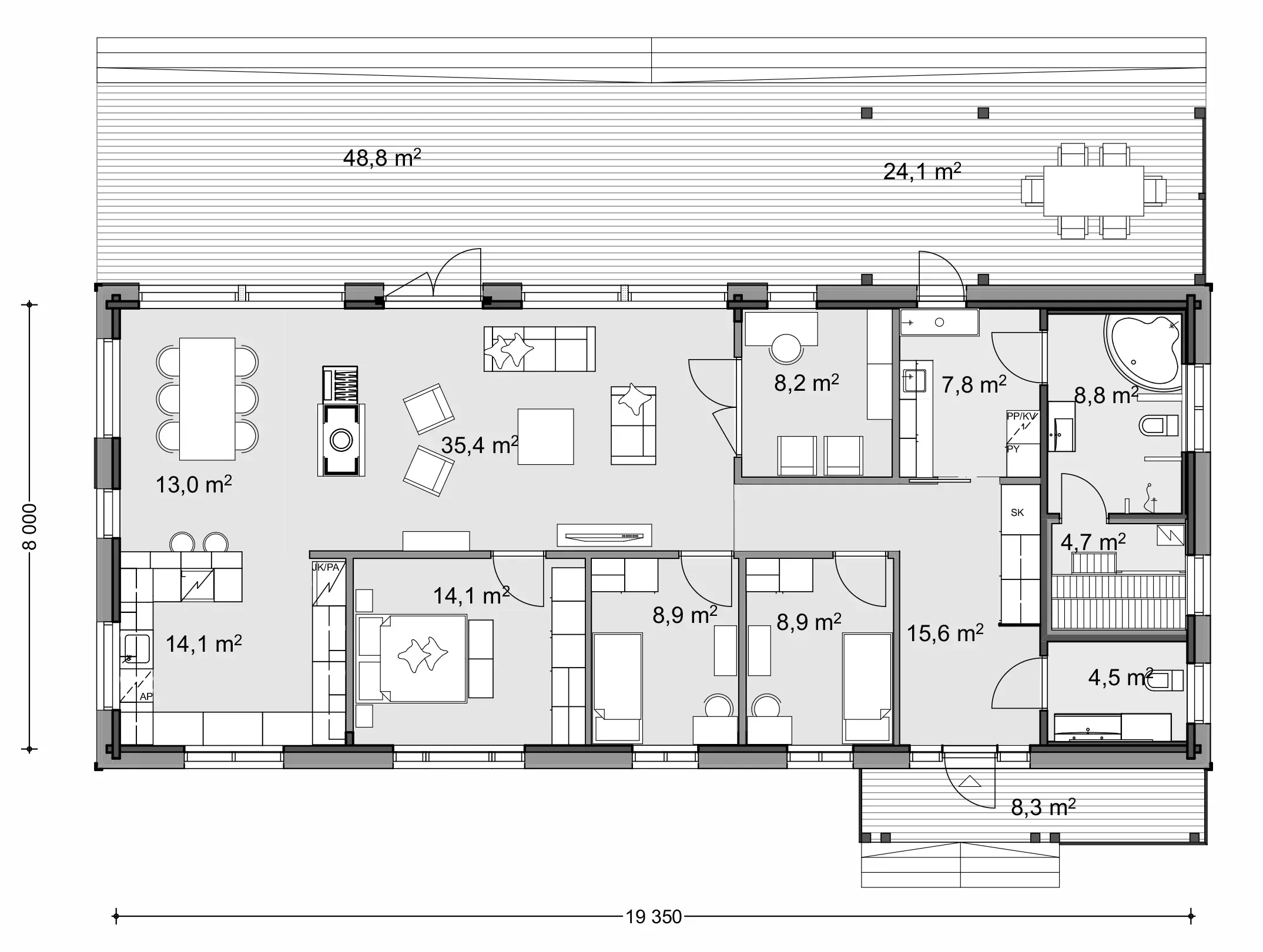
Floor Area
175 m²
Apartment Area
145.5 m²
Honka ID
14908

Floor plan

Variants
Mambo 175 1A floor plan
Mambo 175 1A facade