Skip to content
Suomi – Suomi
Mallisto Residential house Metso 120 1A

Metso 120 1A

Metso 120 1A
Metso 120 1A
Description

A log cabin with wonderfully high ceilings

Honka Metso is the ideal solution for harmonious living in a naturally beautiful environment – in the middle of the woods, in a mountain meadow or by a lake. The main functionalities are located on the ground floor with the spacious living room and wonderfully high ceilings. On the first floor there is a bedroom with a balcony that enjoys its own privacy.

Overview
Name
Metso 120 1A
Floor Area
122.5 m²
Apartment Area
111 m²
Honka ID
27585

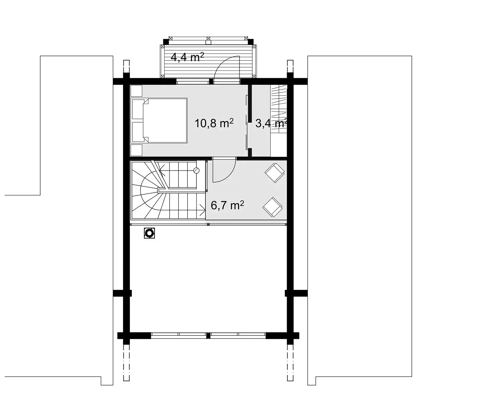
Floor plan

Variants
Metso 120 1A
Metso 120 1A floor plan
Metso 120 1A floor plan