Skip to content
Suomi – Suomi
Mallisto Residential house Nummi 373 1A

Nummi 373 1A

Nummi 373 1A
Nummi 373 1A
Description

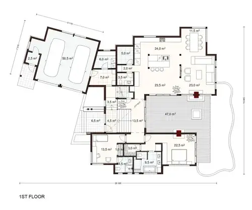
Honka Nummi delights you with its free-form design. The name ‘Nummi’—meaning ‘moor’ in Finnish—highlights the multifaceted floor plan. The U-shaped house is jewelled with a charming terrace area in the middle of the building.

The lounge, dining and kitchen areas on the main floor open towards the terrace area, as does the master bedroom with the necessary extra facilities. The impressive front yard also leads to this courtyard. On the top floor you’ll find two bedrooms with facilities.

Overview
Name
Nummi 373 1A
Floor Area
373.5 m²
Apartment Area
313 m²
Honka ID
50402

Floor plan

Variants
Nummi 373 1A
Nummi 373 1A floor plan
Nummi 373 1A floor plan