Skip to content
Suomi – Suomi
Mallisto Residential house Oula 150 1A

Oula 150 1A

Variants
Oula 150 1A
Oula 150 1A
Description

Hirsirakentajien rakastama Honka Oula uudistui! Oula on pienen perheen oma kotipesä, jonka turvaan ja rauhaan on aina yhtä ihanaa palata. Talomallista on nyt saatavilla kolme eri kattomuotoa, minkä ansiosta Honka Oula istuu niin perinteiseen pientalomaisemaan, väljemmille tonteille luonnon helmaan kuin kompakteille kaupunkitonteillekin.

Keittiö, ruokailutila ja olohuone ovat yhtä avointa tilaa, johon suuret ikkunat tuovat valoa ja raikkautta. Tehokas tilankäyttö ja talon helppo rakennettavuus tekevät Oulasta toimivan vaihtoehdon esimerkiksi nuoren parin ensimmäiseksi omaksi kodiksi. Tilava kodinhoitohuone helpottaa arkea ja sisäänkäynnin yhteydessä on apueteinen kurasyöppöineen.

Overview
Name
Oula 150 1A
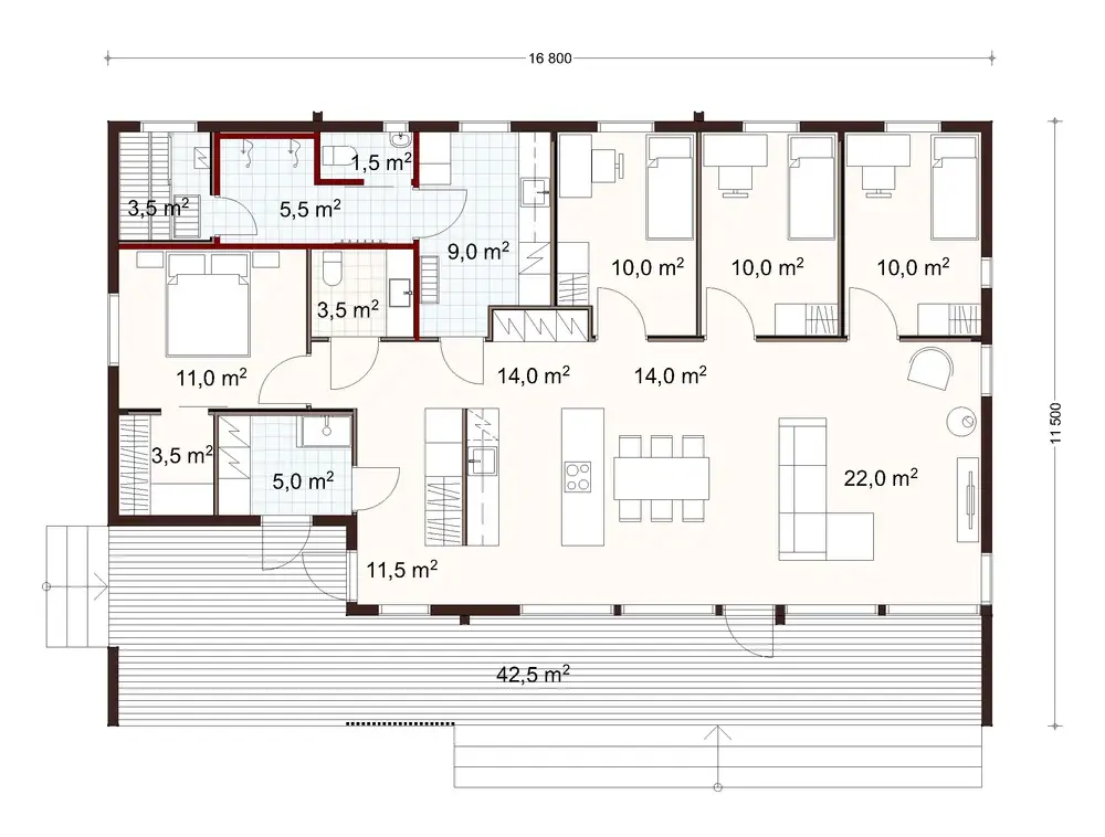
Floor Area
150 m²
Apartment Area
139.5 m²
Honka ID
35248

Floor plan

Variants
Oula 150 1A floor plan