Mallisto
/
Residential house
/
Pilvi 96 1A
Pilvi 96 1A
Pilvi 96 1A
Description
Honka Pilvi on kodikas hirsiunelma, jonka ikoninen arkkitehtuuri viehättää vuosikymmenestä toiseen. Hirsitalon syleilyssä on helppo rauhoittua, sen korkea ikkunaratkaisu avaa upeat näkymät luontoon. Hirsikodin klassinen kauneus näkyy myös talomallin käytännöllisyydessä.
Yksikerroksisessa rakennuksessa on tehokas pohjaratkaisu ja tilava kodinhoitohuone, jonka kautta voit tulla sisään kuraisissakin vaatteissa. Puolitoistakerroksisessa Pilvi-talomallissa on näiden lisäksi toinen oleskelutila ja kaksi makuuhuonetta aputiloineen.
Kuvat ovat visualisointeja Pilvi 112 2A -mallista.
Overview
- Name
- Pilvi 96 1A
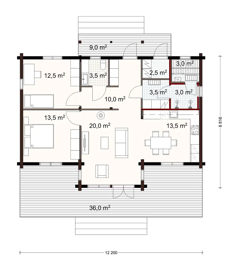
- Floor Area
- 96 m²
- Apartment Area
- 87 m²
- Honka ID
- 50012
Floor plan
Image Gallery