Skip to content
Suomi – Suomi
Mallisto Residential house Serenata 190 1A

Serenata 190 1A

Variants
Serenata 190 1A Serenata 220 1A
Serenata 190 1A
Serenata 190 1A
Description

Traditional log house charm

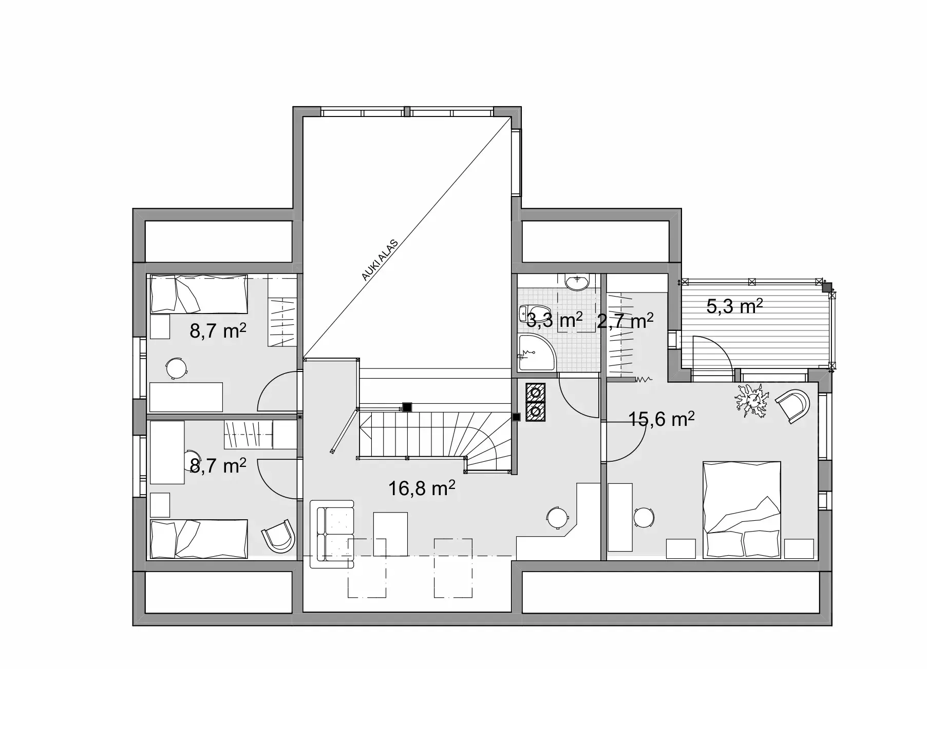
The Honka Serenata house is a popular, traditional log home with classic log house windows. This model is the epitome of open plan living with the vast ground floor space and vaulted ceilings that really show off the fully glazed feature gable.

We have several modified versions of this model that we have created for our clients. There are three generous bedrooms on the first floor and with a large study downstairs there is the option for a fourth bedroom.

Overview
Name
Serenata 190 1A
Floor Area
193 m²
Apartment Area
170 m²
Honka ID
10991

Floor plan

Variants
Serenata 190 1A Serenata 220 1A
Serenata 190 1A floor plan
Serenata 190 1A floor plan